拿地三年未入市,深铁铭著坊要熬成现房了
文/乐居财经 严明会
三条地铁环绕,一路之隔便是松岗实验学校,深铁铭著坊被誉为是眼下深圳松岗最好的新盘。
该项目位于宝安区松岗街道沙浦围工业大道与沙江路交汇处西北侧,住宅部分主体已全面封顶,却迟迟未见入市。
不过,近日项目一二期《建设工程规划许可证》及总平面图的公布,似乎意味着铭著坊入市的步伐要近了。
铭著坊项目地块最早由深铁在2021年拿下。当年11月,深圳第三批集中出让11宗涉宅地块,最终,深铁以178.51亿元一举拿下5宗。
当中,位于宝安区松岗街道的A407-1020地块,便是如今的铭著坊项目。
地块当时成交价17.79亿元,折合成交楼面价10324元/㎡。
地块需建设出售型安居型商品房,并设置普通商品住房销售均价不得高于4.45万元/平方米,安居型商品房平均售价不得高于2.14万元/平方米、最高售价不得高于2.25万元/平方米。
根据规划,铭著坊建设用地面积2.55万平方米,总建筑面积23.85万平方米,计容积率建筑面积18.99万平方米,容积率7.44。有住宅、办公、酒店、商业等多种业态。
项目分两期建设,一期主要为三栋29层、46层的住宅楼以及一栋2层的幼儿园,二期则是一栋54层高的办公 酒店物业。

小区三栋住宅为1栋一、二、三单元,当中1栋一、二单元均为46层,是普通商品房;1栋三单元29层,是安居型商品房。
梯户比上,1栋一单元3梯5户,1栋二单元3梯6户,1栋三单元作为安居型商品房则更小,是2梯7户设计。
整个小区总规划651户,其中商品房462套,安居房189套,规划1206个车位,车位比1:1.85。
从总平图看,小区的大门设计在沙浦围工业大道一侧,高度11.95米。门前有绿化岛,有些类似酒店的环岛出入口设计。
二期的办公 酒店物业,则分别有单独的两个出入口,一旁还设计有下沉广场。另外二期裙楼还有宴会厅等酒店配套。自身的商业配套还是比较齐全的。
值得关注的一点,铭著坊住宅小区的普通商品房和安居型商品房,并没有做隔离,是共用住宅花园的。而且,1栋一单元与1栋三单元之间有风雨连廊连接。
小区正门的北侧,1栋三单元的南侧靠近出入口处等地方,也都不同程度设计有风雨连廊。
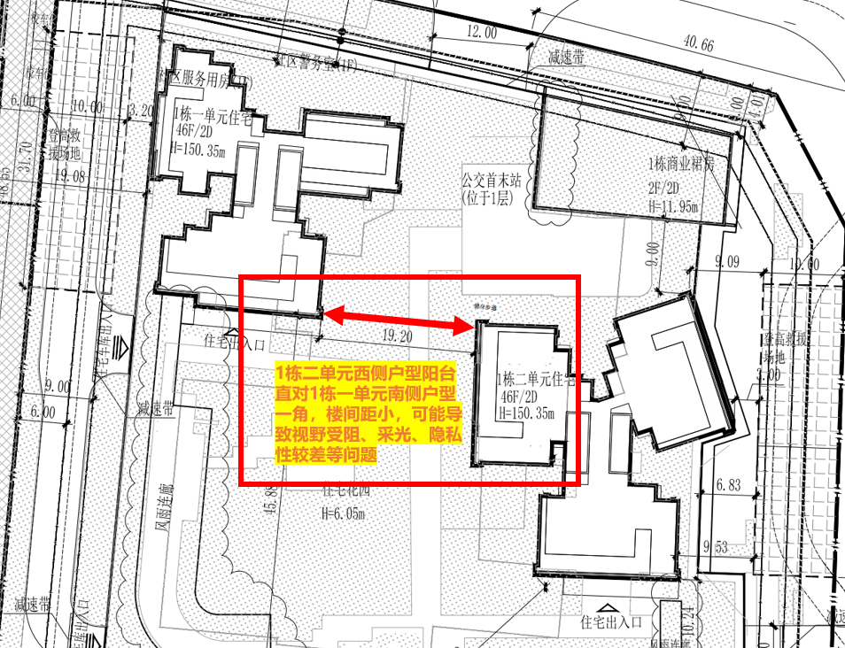
在小区打造了两栋超高层住宅,铭著坊跟深圳的一些超高层楼盘一样,也存在部分楼间距较小的问题。
如1栋一单元与1栋二单元,都是46层的超高层,楼间距仅19米左右。意味这两栋的部分户型视线可能会受阻,有压抑感。
特别对于1栋二单元西侧的户型,感受可能会更明显。其户型阳台直对1栋一单元南侧户型的一角,间距过小,还意味着可能存在隐私性较差的问题。

从目前的声音看,铭著坊的安居型商品房挺受市场关注。
一方面,随着深圳住房保障体系的逐渐转型,深铁铭著坊安居房是松岗片区多年来唯一的安居房,也即将成为宝安最后一个安居房。这为项目积撰了一定的热度。
另一方面,铭著坊的安居房套数并不多,且限价平均售价2.14万/平方米,相比之下,价格也有不少优势。
不过作为安居房,其一层7户的设计,使得户梯比达到94:1,入住后电梯可能还是会比较拥挤。
另外,之于整个项目而言,铭著坊虽然是新盘,但不是新规产品,加之是超高层,因此在得房率方面相比同期上市的产品,或有所不足。
相对比现在许多“拿地即开工”的项目,深铁铭著坊的面市其实算慢了。
自2021年11月拿下地块,铭著坊项目至今满打满算也已经有三年多了。期间,项目的建设进展正常推进。如今,项目住宅部分主体已全部封顶,准备打造外立面以及室内装修。
意味着项目已经进入准现房阶段了。
实际上,铭著坊项目最早在2023年上半年已披露过一二期规划及总平图,随后于去年11、12月做出过修改。修改内容包括:
一期,根据景观设计优化风雨连廊轮廓及屋顶花园布置;北侧沿街商业裙房建筑轮廓向西扩大3.6m;根据预售测绘情况调整核增面积。
二期,3栋综合楼建筑层数(地上)由52层调整为54层,建筑高度由232.4m调整为244.8m;裙房屋顶增加格栅,塔楼屋顶轮廓调整;根据预售测绘情况调整核增面积。
如今最新规划的再次披露,项目也即将入市。
市场消息透露,铭著坊推出的1栋一二单元普通商品房,面积约为84-119㎡的3-4房,计划将在今年4-5月份取证入市。项目的营销中心跟样板房暂未有传出开放的消息。
铭著坊附近目前在售的有璟荟名庭,贝壳参考均价为4.45万/平方米。另外,深铁璟城、新世界松风明月,网上参考价在4.8-5万元/平方米。
财经号声明: 本文由入驻中金在线财经号平台的作者撰写,观点仅代表作者本人,不代表中金在线立场。仅供读者参考,并不构成投资建议。投资者据此操作,风险自担。同时提醒网友提高风险意识,请勿私下汇款给自媒体作者,避免造成金钱损失,风险自负。如有文章和图片作品版权及其他问题,请联系本站。
