单价站上7万/㎡?中海大运玖章花园“楼王”先跑
文/粤进深 严明会
备受关注的深圳东部豪宅盘。
——中海大运玖章花园,传来新消息。
近日,项目传出,预计9月入市。
而首推的产品,还将是“楼王”单位。
包括1栋205平的户型产品;
跟2栋196平、278平户型。
让大户型“先跑”,这还是挺让人意外的。
或也从侧面展现,中海对这个项目怀有绝对自信。
大运玖章花园,是中海继深湾玖序之后。
在大本营深圳的又一个“玖系”产品。
今年1月份,深圳2025年首宗居住用地出让。
龙岗龙城街道G01045-0200宗地。
地块引来了8家实力房企的竞逐。
最终经过246轮激烈竞价,由中海以总价30.65亿元收入囊中。
溢价率高达约70%,折合楼面地价约29611元/平方米。
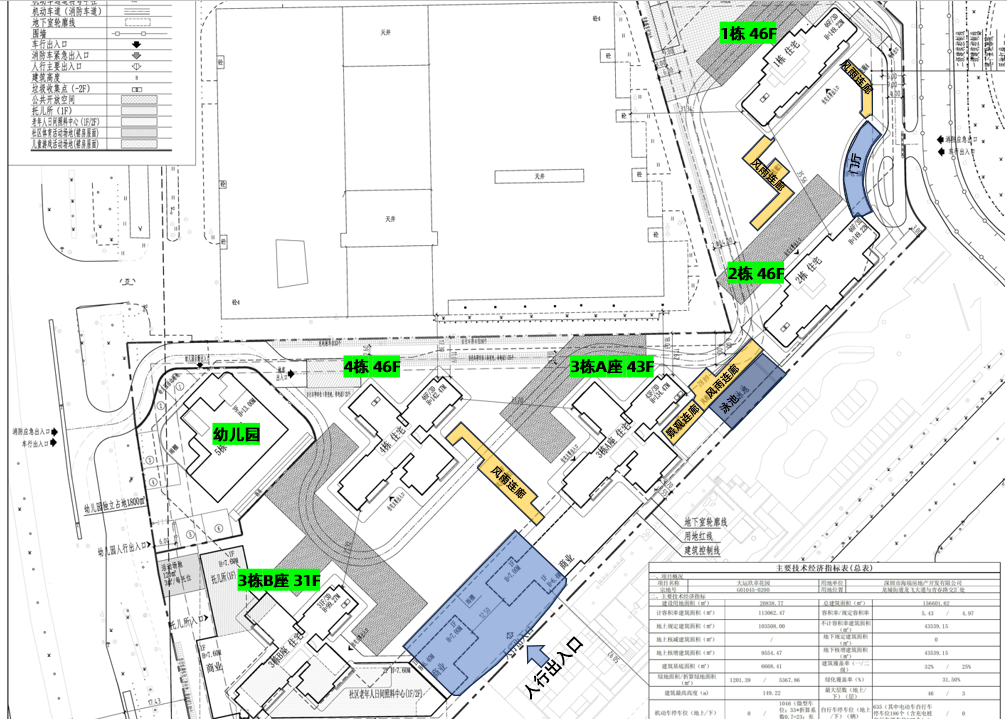
该地块总用地面积2.08万平方米;
总建筑面积15.66万平方米;
计容积率建筑面积11.31万平方米。
容积率5.43。
其中,住宅建筑面积9.89万平方米,商业建筑面积1000平方米。
此外,还需建设幼儿园、社区老年人日间照料中心、托儿所、物业服务用房等。
项目规划建设五栋高层及超高层住宅。

分别为1-4栋,3栋又分为A、B两座。
整个项目由于被分为两个不规则的小地块。
基于地块形状,大运玖章花园将1栋、2栋分布在较小的北地块。
并且都是46层的超高层,为一层两户。
较大的南地块,则排布了3栋A、B座以及4栋。
这里边3栋A座43层,3栋B座31层,4栋46层。
四栋楼均是一层四户的设计。
5栋作为幼儿园,也排布在较大的南地块。
项目总户数614户。
机动车停车位1046个,车位户数比达到1.7。
整个大运玖章花园,定位高端。
没有小户型,全系为120-280平的三至四房产品。
其中,3、4栋为125、138、143平户型。
而最新传出首推入市的,是项目的1、2栋。
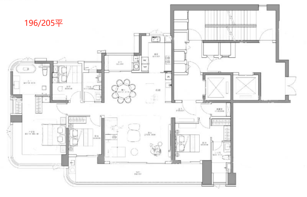
“楼王”单位,建面196、205、278平的大平层。
根据传出的户型图。
建面196、205的户型为四房两厅三卫。

双套房设计,四开间朝南,南北双阳台;
客厅阳台连接两个次卧,营造大阳台面宽;
主卧还有270°大飘窗。
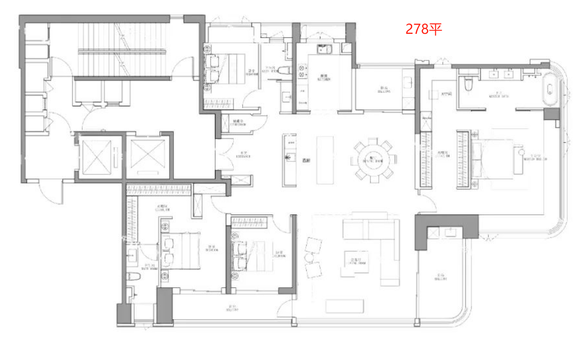
278平户型同样为四房两厅三卫。

双套房、三阳台设计;
客厅阳台亦连接两个次卧;
主卧270°大飘窗。
不仅户型大。项目的层高据称达3.15米。
得房率据悉能到95%以上。
至于价格,自然也不便宜。
由于项目的楼面地价就接近3万/平。
有市场消息预测首推的大户型会达到7万/平。
总价起步达1300万以上。
目前,关于大运玖章花园传出的价格
在网上已经引发了较大讨论。
有不少人觉得,这样的价格超预期了。
但也有人认为,品牌和地段就在这,值这个数。
可以对比的是,贝壳数据显示,周边在售新房。
泰瑞府参考单价4.3万/平;
美域蓝湾参考单价4.9万/平;
颐安都会中央参考单价4.9-5.2万/平。
这些项目的户型面积在88-162平。
相比之下,大运玖章花园首推的产品面积要大出许多。
传出的单价确实要高出不少。
不过大运玖章花园毕竟定位豪宅。
还是中海的“玖系”产品。
后续,就看市场消费者会不会为产品的高溢价买单了。
从产品的定位,不难看出。
中海对大运玖章花园寄予着厚望。
项目的开发主体是深圳市海瑞房地产开发有限公司。
这家公司成立于去年12月,董事长为刘显勇,经理是赵亮。
这两位人士,刘显勇是中海发展的副总裁。
赵亮则是中海深圳公司总经理。
去年6月,深圳网红豪宅中海深湾玖序开盘。
毛坯备案均价13.3万元/㎡,精装均价14.3万/㎡。
一举创下深圳新建商品房最高价。
项目为中海稳住大本营地位贡献良多。
最近两年,中海在北京、上海等城市的高端项目频频出圈。
而中海深圳市场,凭借深湾玖序。
显然也尝到了不少的甜头。
大运玖章花园,能否以高端战略。
成为其在深圳大本营,继深湾玖序之后的爆款。
对中海而言,显然具有重要意义。
相关公司:中国海外发展hk00688,湖南中海控股
财经号声明: 本文由入驻中金在线财经号平台的作者撰写,观点仅代表作者本人,不代表中金在线立场。仅供读者参考,并不构成投资建议。投资者据此操作,风险自担。同时提醒网友提高风险意识,请勿私下汇款给自媒体作者,避免造成金钱损失,风险自负。如有文章和图片作品版权及其他问题,请联系本站。
