一层七户+超高容积率!万丰海岸城檀府卖5万+/㎡,值不值得冲?
粤进深 严明会 万丰海岸城檀府将于本周六(10月25日)开盘。
项目上周刚拿了预售证,首推3栋1/2单元,共443套房源。
其中,3栋1单元梯户比为3梯7户,2单元为3梯4户。
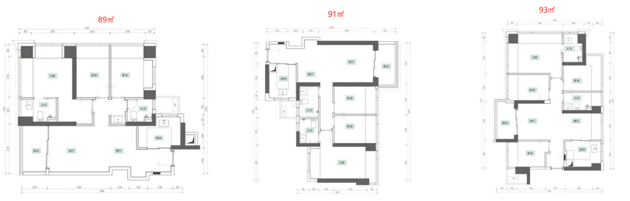
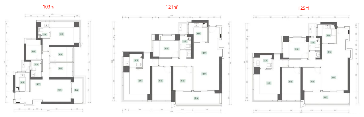
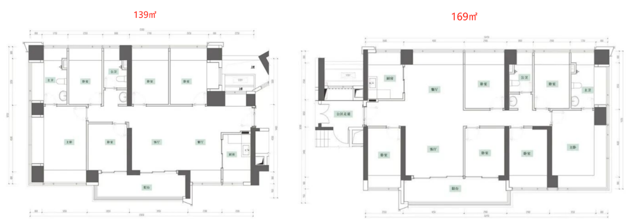
户型为建面约89-91㎡三房两卫,93-103-121-125㎡四房两卫,139㎡五房两卫以及169㎡六房两卫。
备案均价约5.46万元/㎡,带装修交付。
据悉,项目开盘给出了约94.11折的折扣优惠(诚意登记99折*认筹劲爆97折*认购惊喜98折),折后均价约5.14万元/㎡。
跟之前吹风价5万/㎡差不多,没有太大惊喜。



万丰海岸城整体规划建筑面积超过500万平方米,集商业、住宅、产业、甲级写字楼、酒店等于一体,是超大型城市综合体项目。
该项目由海岸新城投资负责开发建设,是深圳海岸集团和万丰股份合作开发的项目。

目前,万丰海岸城已打造多个项目,包括锦园、珑园、珺园、玺园、海岸大厦(三期)、瑧园(三期)、瀚府(四期)等。
新一期项目檀府,分南北两个地块组成,总占地面积约3.64万m²,总建筑面积约36.24万m²,计容建筑面积约26.37万m²。
共有7栋超高层住宅和1所幼儿园,其中5栋商品房住宅,2栋保障房,规划总户数2496户,包括普通商品房1392户,保障房1104户。
项目作为新规产品,使用率是最大的亮点,高达93-104%。
但同时也存在不少槽点。
比如,高容积率。项目首推的北地块容积率达到6.79,南地块的容积率更达7.72。相比深圳近段时间以来推出的新地块,容积率高出不少。
并且项目都是超高层,楼间距、小区花园等休闲空间并不宽裕,居住舒适度或许不是那么友好。
城市界面也比较一般,周边有不少老厂房和小产权房,新盘坐落其中,多少很点反差。
小区有保障房,居住人群不够纯粹。
还有一点,梯户比紧张。檀府的五栋普通商品房,绝大部分为一层七户、八户设计。
仅有最北端的3栋二单元是一层四户,整个小区的居住密度偏大。
首推的北地块,3栋二单元是3梯4户;另外的三栋,3栋一单元、2栋一二单元则是3梯7/8户。

项目建设单位是深圳市海岸新城投资有限公司(简称“海岸新城投资”)成立于2013-12-04,注册资本17亿元,法定代表人、董事长为陈波。
该公司由深圳市海岸房地产开发集团有限公司、深圳市信通瀛投资有限公司、深圳市海岸西部投资有限公司分别持股55%、25%、20%。
财经号声明: 本文由入驻中金在线财经号平台的作者撰写,观点仅代表作者本人,不代表中金在线立场。仅供读者参考,并不构成投资建议。投资者据此操作,风险自担。同时提醒网友提高风险意识,请勿私下汇款给自媒体作者,避免造成金钱损失,风险自负。如有文章和图片作品版权及其他问题,请联系本站。
