老业主又被搞心态!住总清樾府二期调规、南向新增阳台
北京进深 徐迪 10月23日,昌平区CP01-0901-0006地块项目总平图公示。
项目位于昌平区北五-六环科学城西区板块,由北京住总2024年2月摘得,开发为清樾府项目。
一期0013地块去年7月19日取证,共416套,销售指导价5.6万/㎡。目前网签204套,去化率49%。
二期0006地块占地5.49公顷,原规划总建筑面积11.64万㎡,其中地上建面6.92万㎡,地下4.72万㎡。
现为提升项目居住品质,打造人民满意的“好房子”,拟按照好房子《技术要点》进行重新设计调整。
方案优化后,项目总建面减少至11.25㎡。
其中:地上建面增加至6.95万㎡,地下建筑面积降到4.3万㎡。
建筑高度12.45米,容积率1.26,绿地率30%。居住户数672户,居住人数1647人。
地上计容面积6.92万㎡不变,配建托老所、老年活动场站、社区助残服务中心、配电室等。
主要是新增了不计容面积,约314.45㎡,包括邻里中心234.32㎡,架空层80.13㎡。
此外,一期产品赠送空间主要是南向+转角/侧边飘窗,北向不可封闭设备平台。
二期调规后,南向新增了内嵌阳台,进深1.2米/1.5米/1.8米不等。
预计得房率较一期将有大幅提升。
目前网签来看,一期还有一半房源没卖掉。有新规产品比着,一期除了降价也很难有别的出路。
又要搞老业主心态了。
住总清樾府所在昌平区百善镇0901-0004、0006、0013、0014地块,以底价35亿元成交,折合楼面价2.35万元/㎡。
项目开发主体为北京佰昌房地产开发有限公司,法定代表人、董事长为宋磊,项目公司总经理为赵会涛。
项目占地面积约11. 57万㎡,容积率1.2,包括3个住宅子地块,总建面约14.02万㎡,规划62栋住宅,共1392套房源。
2024年7月19日,一期0013地块18栋4F洋房共416套住宅取得预售许可证,销售指导价5.6万/㎡。
去年11月开始有网签转化,目前累计网签204套,去化率49%;
成交均价4.3万元/㎡,约为指导价的77折,每平米直降1.3万+。
网签金额总计8.3亿元,约为拿地价的24%。



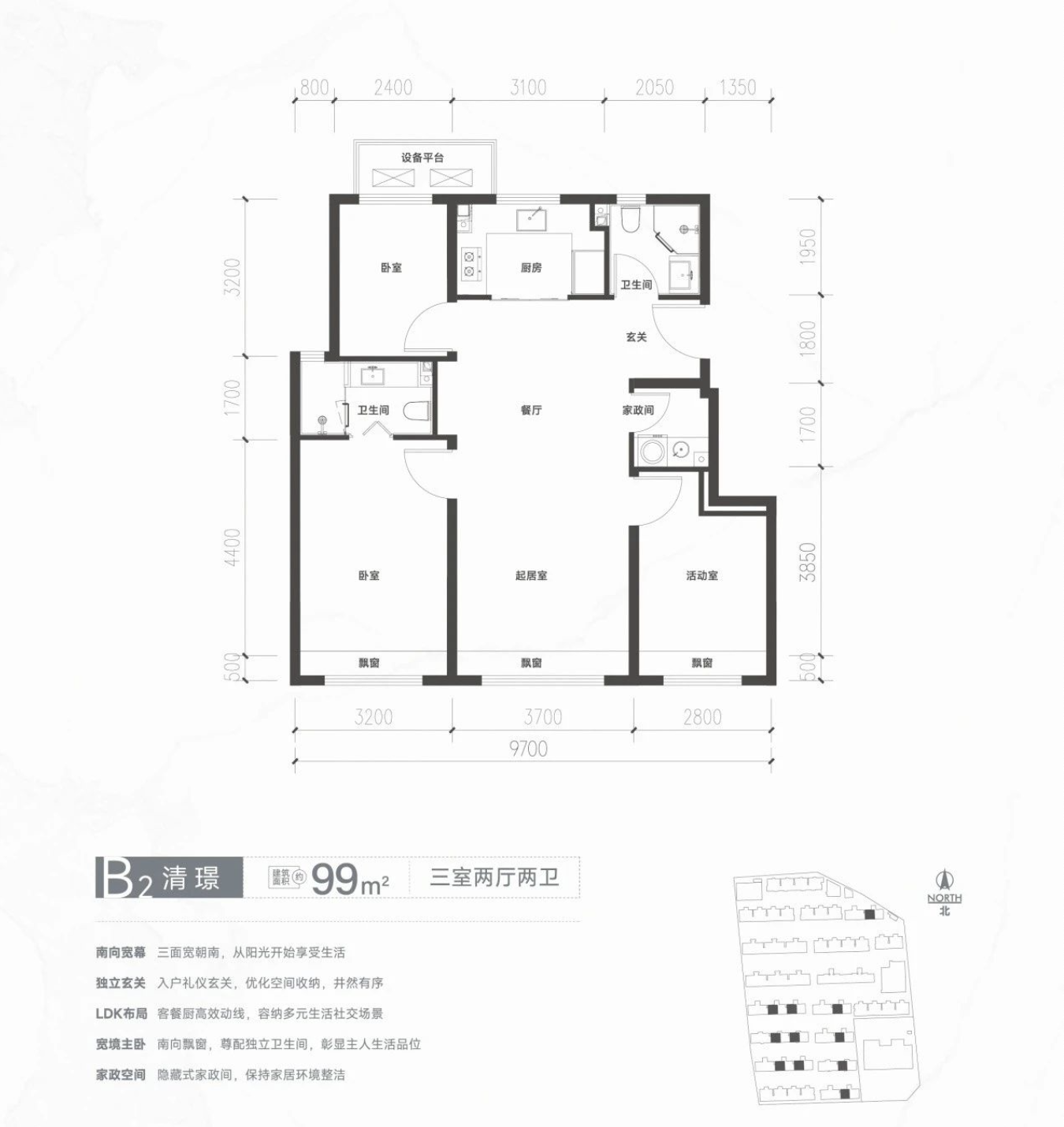
首批入市房源均为4层洋房,建面86-143㎡三居四居,精装交付,主力户型得房率80%以上。
从户型图来看,清樾府在赠送面积也算可圈可点,以86㎡起步户型为例,三房两厅双卫,南向飘窗3.5㎡全赠送,北向设备平台也有将近3㎡。
但是这种狭长户型,普遍存在客厅太大,卧室过小的问题。
整体看起来,南向两开间占了近40㎡的面积,客餐厅22.5㎡,主卧超15㎡;
其余40多㎡被格成了6块小空间,包括厨房8㎡、玄关4.3㎡,还有个3.3㎡的家政间,公共卫生间4㎡;
北向的两个房间,东边的小卧室7㎡;西边的书房只有6.6㎡。







财经号声明: 本文由入驻中金在线财经号平台的作者撰写,观点仅代表作者本人,不代表中金在线立场。仅供读者参考,并不构成投资建议。投资者据此操作,风险自担。同时提醒网友提高风险意识,请勿私下汇款给自媒体作者,避免造成金钱损失,风险自负。如有文章和图片作品版权及其他问题,请联系本站。
