保利半壁店豪宅反馈意见何时通告?报规图没有配电室
北京进深 徐迪 海淀宝山双子取证开盘在即,东边不远处的保利半壁店项目,却在上个月报规之后再无进展。
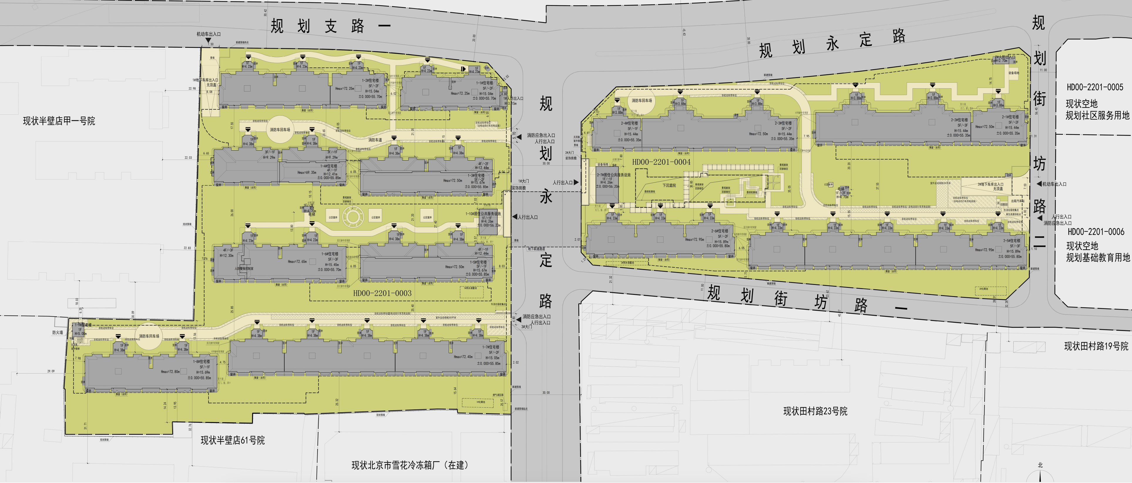
截至目前,设计方案发出来也将近1个月了,反馈意见仍未通告。
不少意向购房者都在观望,半壁店项目大量突破限高的建筑能否拿下规证。
另一方面,除了限高问题,这版总平图还存在不少小BUG。
比如说,没有明确标出开闭站和配电室的位置。
01
一个总建面超10万方的住宅小区,如果小区开闭站数量不足,可能会导致电力供应不足,从而影响小区的正常运行。
在半壁店地块出让文件中明确提到,规划在项目内新建10千伏开闭站1座,规模为三进十四出。
本期双回电源引自双槐树110千伏变电站,新建电缆长度约2*2.2公里。
从半壁店项目总平图来看,东西两区总共有3栋配套楼。
西区03地块有两栋:
大门口面积较大的一栋,作为小区门面景观的组成部分,一般做物业管理、小型商业等功能;
另一栋在小区最西侧,面积大约30平米,显然也不够开闭站的规模。
而东区的04地块,只有一栋配套楼:
即正门口的一栋,标记为居住公共服务设施。
穿过去就是造型繁复的游廊庭院等中心景观,很难想象会在把这栋楼做成配电室。
但除此之外,总平图上再无足够规模的配套楼可以做开闭站及配电室。
参照其它同等规模小区的方案,开闭站占地面积大约在300平米左右。
可以看下保利北五环的嘉华天珺项目,最新公示的西区总平图,总建筑规模在7万㎡出头。
它的配电室占地面积,甚至比一栋单体住宅楼还大。
但在半壁店项目的总平图上,除了大门口的两栋,没有其余地上建筑具备建开闭站的条件。
查了下相关要求,一般情况下要求开闭站设置在单独的建筑物中,或附设在建筑物一楼的群房中。
不建议放地下室,尽量采用自然光和自然通风,同时开闭站地面应高于室外地面,防止雨水进入。
根据《10kV及以下变电所设计规范》GB50053-94,变压器室、配电室等重要设施需要有防雨、雪和小动物侵入的设施,以确保内部环境的干燥和安全。
第6.2.7条明确指出,电缆夹层和电缆室必须采取防水排水措施,防止积水引发的电气设备损坏。
这么看下,半壁店项目的配电室只在放到大门口了。
还有一种特别不靠谱的猜测,设计公司忘画了。
去年嘉华天珺就因为设计图纸出问题耽搁了进度,保利不会在同一个坑里摔两次吧?
不过在进度方面,半壁店项目似乎并不着急。
02
有传闻说,这个项目要做实景开盘,那起码也要到一两年之后。
不知道是否因为这个决策,项目的合作方北京建工地产已经有了退出意向。
10月23日,项目总平图公示期结束当天,半壁店地块的开发主体北京慧海常筑置业有限公司登记了一条股权出质登记信息。
出质人是北京建工地产,股权数额136,050万元,加上此前出质的300万元,刚好对应注册资本的30%。
全部出质给了保利(北京)房地产开发有限公司。
今年5月底,保利发展和北京建工地产组成联合体,以45.45亿元总价摘得海淀半壁店两幅住宅地块。
6月19日,北京慧海常筑成立,注册资本即拿地金额。
保利北京和北京建工地产分别持股70%和30%。
保利北京总经理李红亮担任项目法定代表人兼董事长、经理。
03
拿地5个月后,保利建工海淀半壁店项目的总平图才公示。
开发进程略有波折,主要原因还是半壁店地块自身的特殊性——限高问题。
地块北边有一座空军机场,距离跑道2公里左右,属于净空区内,控高很严格。
在正式挂牌后,地块经历过一次调规,其中对项目影响最大的就是限高。
调整后要求主体建筑高度按15米限高,并严格控制在18米之内。好房子新规鼓励开发商做到层高3米,按照这个限高,项目可能连5层都做不出来。
不过,调规文件还是留了一句活话:最终以空军机场主管部门审批意见为准。
或许正是因为这句话,让保利萌生了可以“博弈”的想法。
最终,半壁店项目报规的方案建筑高度是15.89米。并且大部分楼栋都超过了15米,地上楼层数做到5层。
项目建设用地面积4.06公顷,总建面约10.15万㎡,其中地上建面5.8万㎡,地下4.35万㎡,容积率1.43。
规划14栋住宅楼,行列式排布,正南正北朝向。
分为东西两区,总计330多套房源,户均面积约170㎡,层高3-3.1米。
东区在两排楼之间设有下沉庭院,周围环绕景观廊架,配有数个顶部镂空的四方景观亭。
西区间距实在没有太大发挥空间,还要留出消防通道,只做了个圆形的景观廊架,造型还挺别致的,大约是风水上有什么讲究。
赠送方面,看平面图是没太大惊喜,只有南侧的一字形飘窗。
并且不像宝山双子做成大尺度L型的,预测是客厅没有,南向两个卧室各有一段。
楼栋南侧都有大量窗井,首层大概率是下跃户型。
相关公司:北京建工
财经号声明: 本文由入驻中金在线财经号平台的作者撰写,观点仅代表作者本人,不代表中金在线立场。仅供读者参考,并不构成投资建议。投资者据此操作,风险自担。同时提醒网友提高风险意识,请勿私下汇款给自媒体作者,避免造成金钱损失,风险自负。如有文章和图片作品版权及其他问题,请联系本站。
