丰台新宫新增3栋安置楼,封闭式小区、人车分流
北京进深 徐迪 11月27日,丰台区槐房村和新宫村旧村改造项目NY-023地块安置房项目规划设计方案公示。
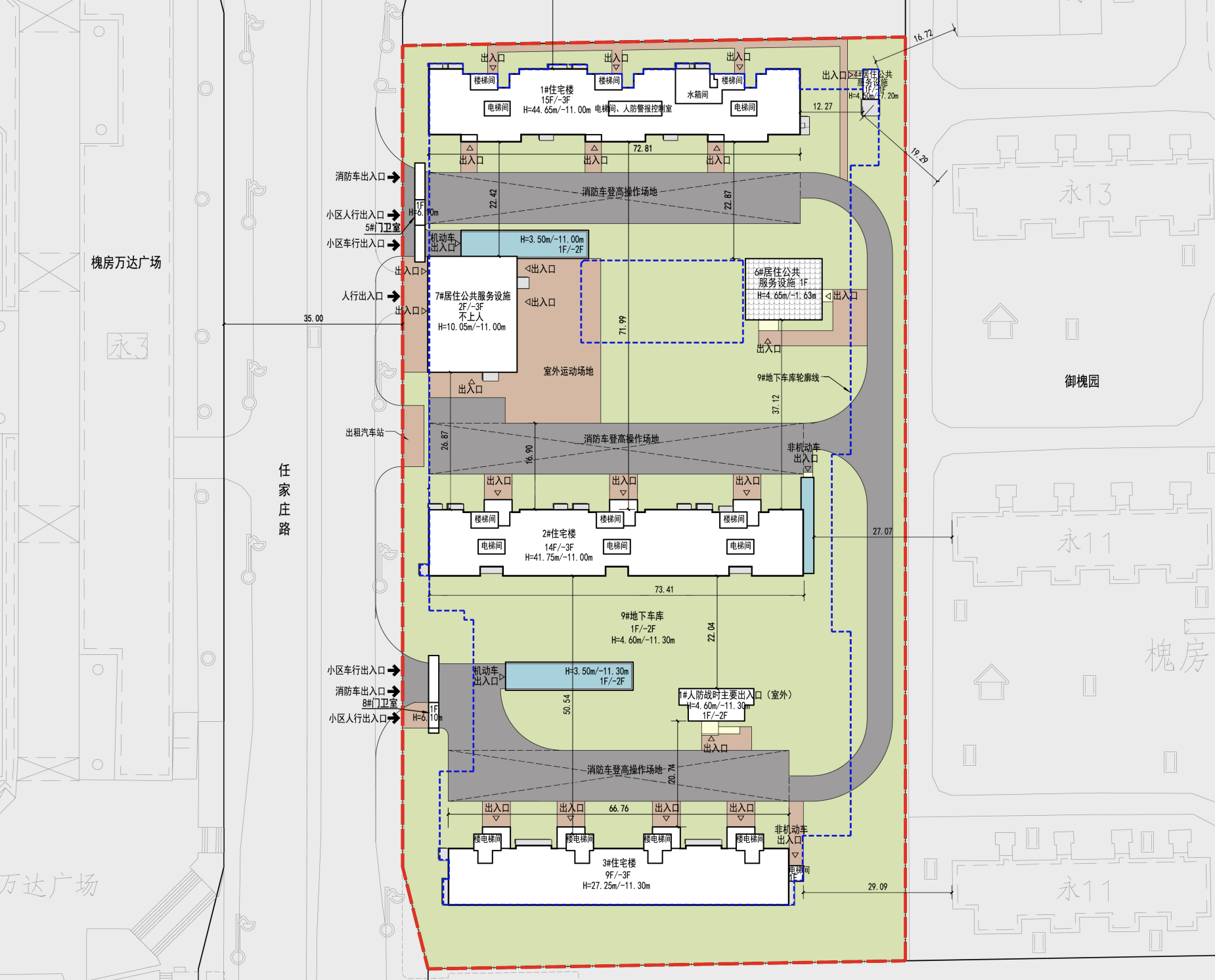
项目建设单位为中苑盛世投资管理有限公司。
地块位于丰台区南苑街道,东至现状御槐园小区,南、北至规划绿地,西至现状任家庄路。
总用地面积1.78万㎡,总建筑面积约6.32万㎡,其中地上建面约3.55万㎡,地下2.77万㎡。
建筑高度44.65米(最高),容积率2.0,绿地率30.69%。
规划3栋住宅楼,共246户。
楼栋北高南低,分别为15F、14F、9F,楼间距72米、51米。
小区规模虽然不大,但基础配建齐全。
包括3栋居住公共服务设施,位于1#楼和2#楼之间,以及小区东北角。
另有室外运动场地、地下车库等。
机动车进入小区直接下到地库,地面无停车位,人车分流。
这个安置房小区向南就是丰台今年卖得最好的建发金茂观宸。
分为东西两期开发,均为6-18F洋房+小高层产品,面积段111-165㎡。
西地块为一期,共11栋479套,今年3月份首开,目前网签349套,去化率72%。
东地块为二期,共12栋395套,9月份取证,目前网签44套,去化率11%。
成交均价7.8万元/㎡,二期成交价略低。

相关公司:建发集团
财经号声明: 本文由入驻中金在线财经号平台的作者撰写,观点仅代表作者本人,不代表中金在线立场。仅供读者参考,并不构成投资建议。投资者据此操作,风险自担。同时提醒网友提高风险意识,请勿私下汇款给自媒体作者,避免造成金钱损失,风险自负。如有文章和图片作品版权及其他问题,请联系本站。
