中建方程国贤府,大门退到了小区里
文/北京进深 徐迪
案名公布后,中建方程国贤府迅速公示了设计方案。
这是北京主城区的首座国贤府系项目,由中建方程操盘。
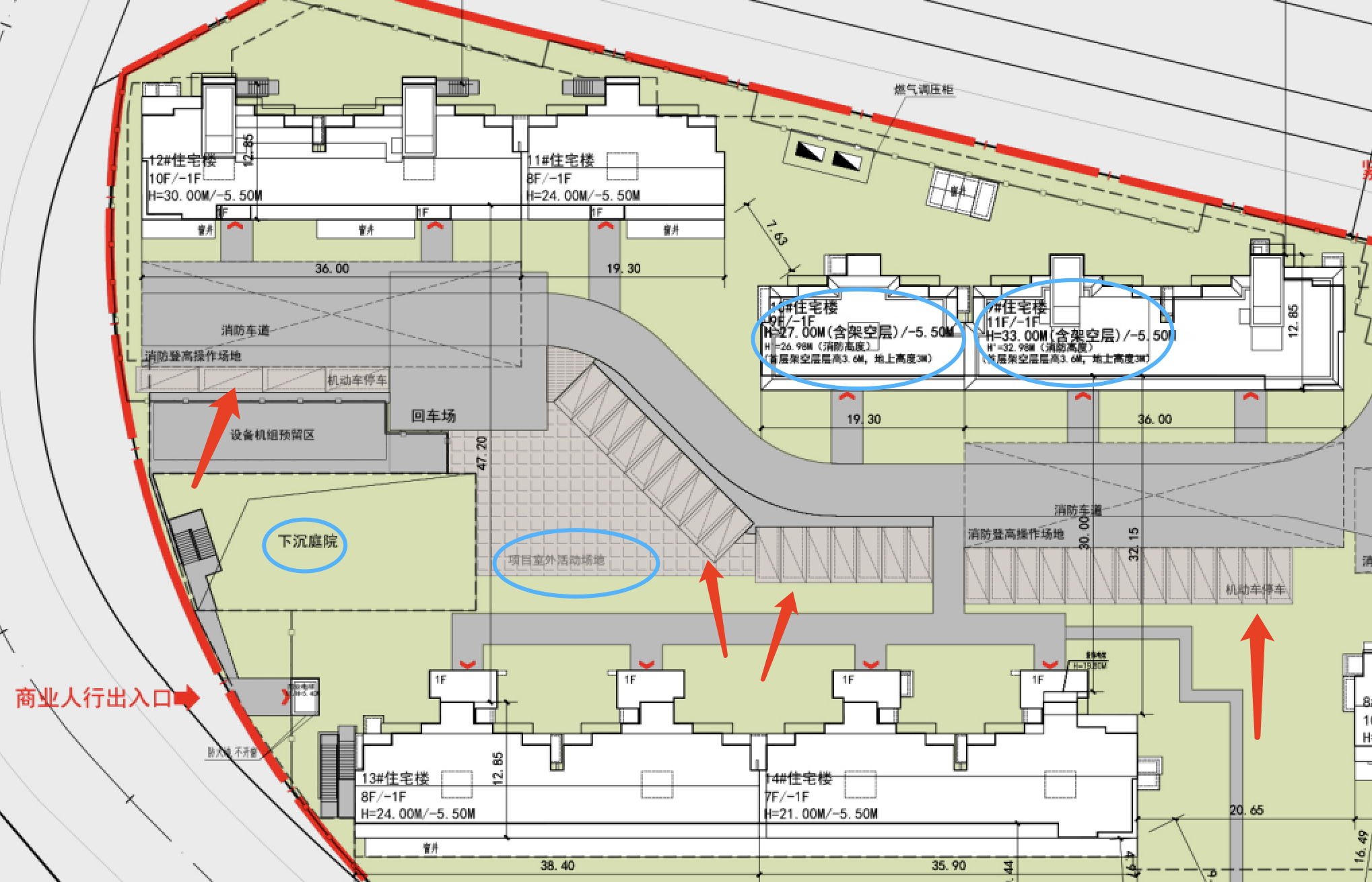
项目位于丰台区北宫镇,总用地面积约3.18公顷,总建筑面积约7.37万㎡,其中地上建面4.93万㎡,地下约2.44万㎡,建筑高度33米(最高),绿地率30%。
1、14栋住宅楼,全洋房社区
总共约508套房源,户均97㎡。
1#楼10层,两单元4户,共40户,建面约85㎡;
2#楼10层,两单元4户,共40户,建面约95㎡;
3#楼8层,两单元4户,共32户,建面约75㎡,有顶退户型;
4#楼10层,两单元4户,共40户,建面约85㎡;
5#楼8层,两单元4户,共32户,建面约75㎡,有顶退户型;
6#楼11层,首层架空,两单元4户,共40户,建面约120㎡;
7#楼9层,首层架空,两单元4户,共32户,建面约120㎡;
8#楼10层,四单元8户,共80户,建面约120㎡;
9#楼11层,首层架空,两单元4户,共40户,建面约85㎡;
10#楼9层,首层架空,一单元2户,共16户,建面约110㎡;
11#楼8层,一单元2户,共16户,建面约110㎡;
12#楼10层,两单元4户,共40户,建面约85㎡;
13#楼8层,两单元4户,共32户,建面约95㎡;
14#楼7层,两单元4户,共28户,建面约85㎡。
2、4个架空层,公区配置拉满
大门位于小区西侧中间位置,没有依红线斜建,而是退线十余米,保证大门正位,坐东朝西。
入口景观带十分阔大,从平面图就能看出飞檐翘角的中式大门。
国贤府的园林一贯是纯中式风格,多水系和山石。
在方程国贤府地块出让文件中也提到,要求注重建筑文化内涵和品质,提升建筑设计质量,体现中国特色、古都风韵、时代风貌。
三进式门庭,入口配套楼由风雨连廊环绕,做物业服务用房、社区综合服务用房。
与南侧紧邻的6#、7#楼架空层形成主会所空间。
另外两栋带架空层的楼栋在北边,为9#、10#楼。
与西侧室外活动场地、下沉庭院形成一片泛会所空间。
下沉庭院南侧有一个专门的商业人行出入口,内设电梯,推测有地下商业空间。
3、地面人车不分流
粗略数了一下,小区地面有90多个机动车停车位。
分布在消防车道周围,除了大门和中央景轴的位置,其它楼栋底下都有停车位。
小区南北各有一处地库出入口,与消防通道共用出入口,而南侧出入口特别标记了“车行出入口”,且设置有出入口广场、非机动停车位。
4、地形不规则,但户型很方正
小区地形呈倒三角状,多边角空间,为了保证户型朝向,楼栋采用了点状排列方式。
14栋住宅楼集中建在三个角的位置,中间留出大面积空间打造园林。
楼栋均为正南正北朝向,面宽资源较好,小户型也能有不错的采光和通透性,预计100平+户型都能做到南向三面宽。
缺点是部分楼栋距离过近,容易形成对视。
例如东北角的1#楼和2#楼之间,距离仅有4米。
2#楼东边户的南阳台,1#楼西边户的北设备平台,隔空对话毫不费力。
5、赠送空间
大部分户型有南向通面宽阳台,北向多个设备平台赠送。
端户有转角飘窗,3#楼、5#楼的顶层房源疑似有露台。
此外,除了4栋首层设置架空的楼栋,其余住宅楼南侧均有大面积窗井,考虑首层下跃户型。
洋房得房率本来就高,丰台赠送尺度在城六区也是比较超前的,预计实得率会很惊艳。
6、方程国贤府,中建智地甘当配角
“府”系作为中建智地产品系中的高端序列,目前在北京已落成三座国贤府。
中建房山国贤府(西府佳苑)、昌平的北京国贤府(一期盛世文庭、二期逸贤华庭)、京华国贤府(学府观园)。
昌平的国贤府PARK上个月底也已公示了总平图。
中建方程国贤府算是第五座国贤府,并且是目前唯一建在城六区的国贤府。
值得一提的是,最新的这座国贤府却是由中建方程来操盘,中建智地仅持有项目公司7%的权益。
之所以会放心地将国贤府这个核心产品系交与中建方程操盘,主要还是由于两家企业同为“中建”系。
中建智地和中建方程都是中国建筑集团有限公司(简称“中建集团”)下属单位,但分属不同层级和业务线:
中建方程直属中建集团;中建智地则是中建一局旗下,属于中建集团的三级子公司。
方程国贤府项目公司的法人、董事长、总经理由中建方程北京公司总经理杨洪禄担任。
两名董事分别为:中建方程房地产事业总监刁鹏、中建智地总经理吴国强为董事。
刁鹏今年年中才从中海跳槽到中建方程,这是他就任后,中建方程在北京操盘的第二个住宅项目了。
相关公司:中建方程,中建智地
财经号声明: 本文由入驻中金在线财经号平台的作者撰写,观点仅代表作者本人,不代表中金在线立场。仅供读者参考,并不构成投资建议。投资者据此操作,风险自担。同时提醒网友提高风险意识,请勿私下汇款给自媒体作者,避免造成金钱损失,风险自负。如有文章和图片作品版权及其他问题,请联系本站。
