北京又有别墅了?怀柔130套带院子大宅加速入市
北京进深 徐迪 3月16日,怀柔规自分局通告,雁栖小镇A区项目设计方案公示期间未收到公众反馈意见。
项目总用地面积8.17公顷,总建面18.89万㎡。
共包含4幅子地块,其中,01、02、04地块为公建混住宅用地,住宅占比30%;03地块为其他类多功能用地。
方案于2月24日-3月3日进行公示。
规划住宅地上建面总计2.98万㎡,共130户,户均建面228.9㎡,包括平层、叠墅等类型。
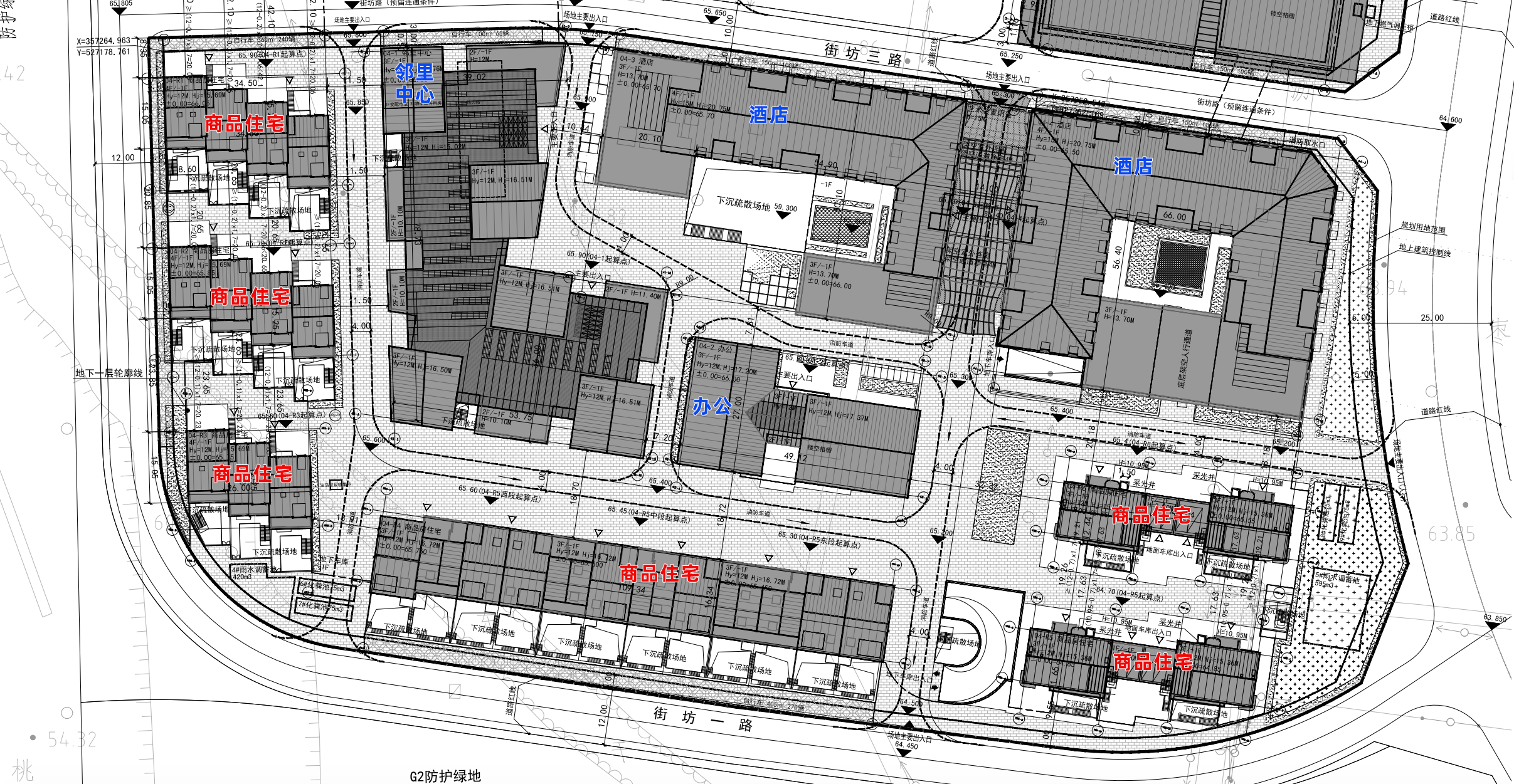
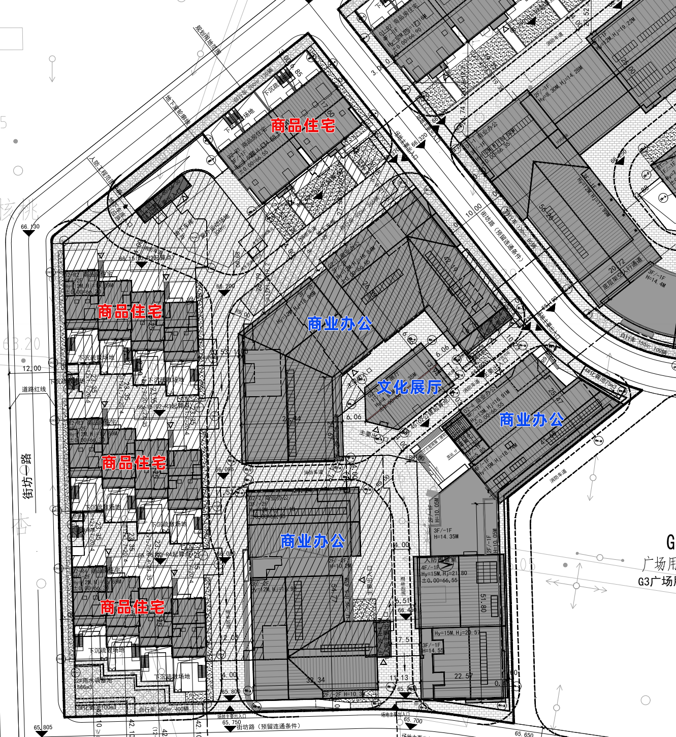
项目建设工程设计方案总平面图

01地块,最北排两栋为住宅楼。
均为4层洋房,北侧有下沉场地,首层房源自带后花园。
共7个单元56户,住宅地上建面合计8550㎡。
配有70个机动车位(含13辆电动),均位于地下车库。
南侧围合式建筑为商业办公楼和集中商业,中间设有一座7.6米高的文化展厅。


02地块,住宅楼栋位于西北侧,共4栋36户。
其中最北边的1栋地上3层,其余3栋均为4层洋房,南北有下沉场地。
住宅地上建面合计7860㎡。
配有50个机动车位(含10辆电动),均位于地下车库。
东侧为商业办公楼和文化展厅。
04地块的住宅楼集中在西侧和南侧,共6栋38户,建面合计13350㎡。
其中西侧3栋地上4层,南北有下沉场地;
南侧3栋均为地上3层,仅南侧有下沉场地。
配有50个机动车位(含9辆电动),均位于地下车库。
北侧为邻里中心和办公楼,另有一座酒店,客房总数183间。
2025年6月21日,怀柔区雁栖镇01-01、02、03、04地块项目,获得市发改委的核准批复。
该项目由北京怀柔科学城城开五部开发建设有限公司承建,建设内容涵盖了F2公建混合住宅和F3其他类多功能设施,预计总投资将达到26.56亿元。
雁栖小镇项目由A、B、C三个区组成,其中:
住宅20.7万㎡,产业空间5.7万㎡,公共服务空间15.6万㎡、社区中心及文化配套1.6万㎡,商业配套9.7万㎡。

A区是首期开发用地,也是小镇规划的核心区域,为雁栖小镇的对外门户和科学城核心区重要城市生活配套。
旨在打造高端、共享的标杆社区,提供高端居住、会议、会展社区交流,吸引常驻园区的战略及杰出科学家。
主要包括高端住宅、办公、配套酒店、文化设施和商业配套。其中,住宅地上面积约2.97万㎡,产业空间2.2万㎡,公共服务7.3万㎡,机动车停车位922个。
B区,雁聚园
所在地块成交于2023年11月1日,由北京怀柔科学城置业有限公司以底价24.1亿元竞得,销售指导价期房4.2万元/㎡,现房4.4万元/㎡。
地上14.6万㎡,其中住宅10.2万㎡,商业4.4万㎡;地下5.4万㎡,停车位1120个。
按照规划,主要建设商业、住宅,依托其自身私密性及景观优势,打造高端生态住宅,吸纳多元化的居佳客群。
拟建433套住宅(别墅102套+洋房332套),公寓273套。
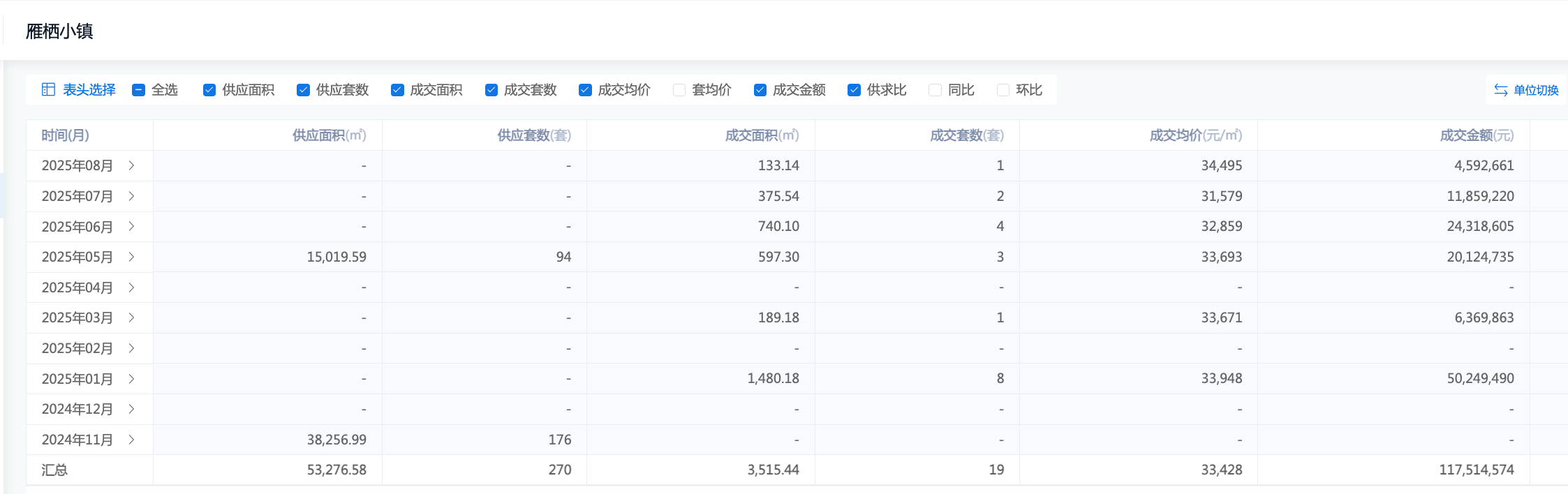
2024年11月,雁栖小镇B区(备案名“雁聚园”)176套商品住宅取证,目前网签19套,去化率约11%;
成交均价约3.34万元/㎡,约为指导价的8折。
C区,雁致园
2024年3月26日,北京怀柔科学城雁栖小镇置业有限公司以底价20.51亿元摘得C区地块。
项目地上面积15万㎡,其中住宅建面7.6万㎡,商业3.9万㎡,办公3.5万㎡。
拟建住宅452套(联排40套,洋房412套),公寓522套,酒店122间。
其中公建部分全部自持,商品住宅自持15%,现房销售占比40%。
C区于2025年5月28日取得预售许可证,备案名为“雁致园”。
共8栋楼94套房源,拟售价格在4.02万-4.56万元/㎡区间,目前暂无网签信息。
产品类型包括联排别墅和4-5F洋房,其中洋房面积段135-185㎡,产权得房率85%以上。

周边教育资源包括包括北京市第一〇一中学(怀柔分校)、北京第二实验小学(怀柔分校)、青苗国际双语学校、雁栖小镇耀中国际学校(在建)、中关村第一小学怀柔分校、雁栖镇中心幼儿园等,还有明年即将招生的北京第三实验学校。
小镇自身有商业配套,但附近大型商业不多,到万达广场、京北大世界等需要20分钟车程。
周边在售新盘包括有北科建翡翠华府,均价3.6万元/㎡;越秀·天恒怀山府,均价3.6万元/㎡;城建府前龙樾,均价4.35万元/㎡。









财经号声明: 本文由入驻中金在线财经号平台的作者撰写,观点仅代表作者本人,不代表中金在线立场。仅供读者参考,并不构成投资建议。投资者据此操作,风险自担。同时提醒网友提高风险意识,请勿私下汇款给自媒体作者,避免造成金钱损失,风险自负。如有文章和图片作品版权及其他问题,请联系本站。
