懋源松榆里项目86条反馈意见曝光:南邻关注楼间距,东侧街坊路很忙
北京进深 徐迪 3月17日,懋源朝阳区松榆里项目方案反馈意见采信情况通告。
该项目总平图于2月24日-3月3日公示,期间收到网上公众反馈意见86条。
1、关于项目与南侧现状小区间距的意见。
建设单位意见:本项目公示图已标注与南侧现状建筑间距,建筑间距符合规范文件要求,满足卫生间距要求,做好防对视处理。
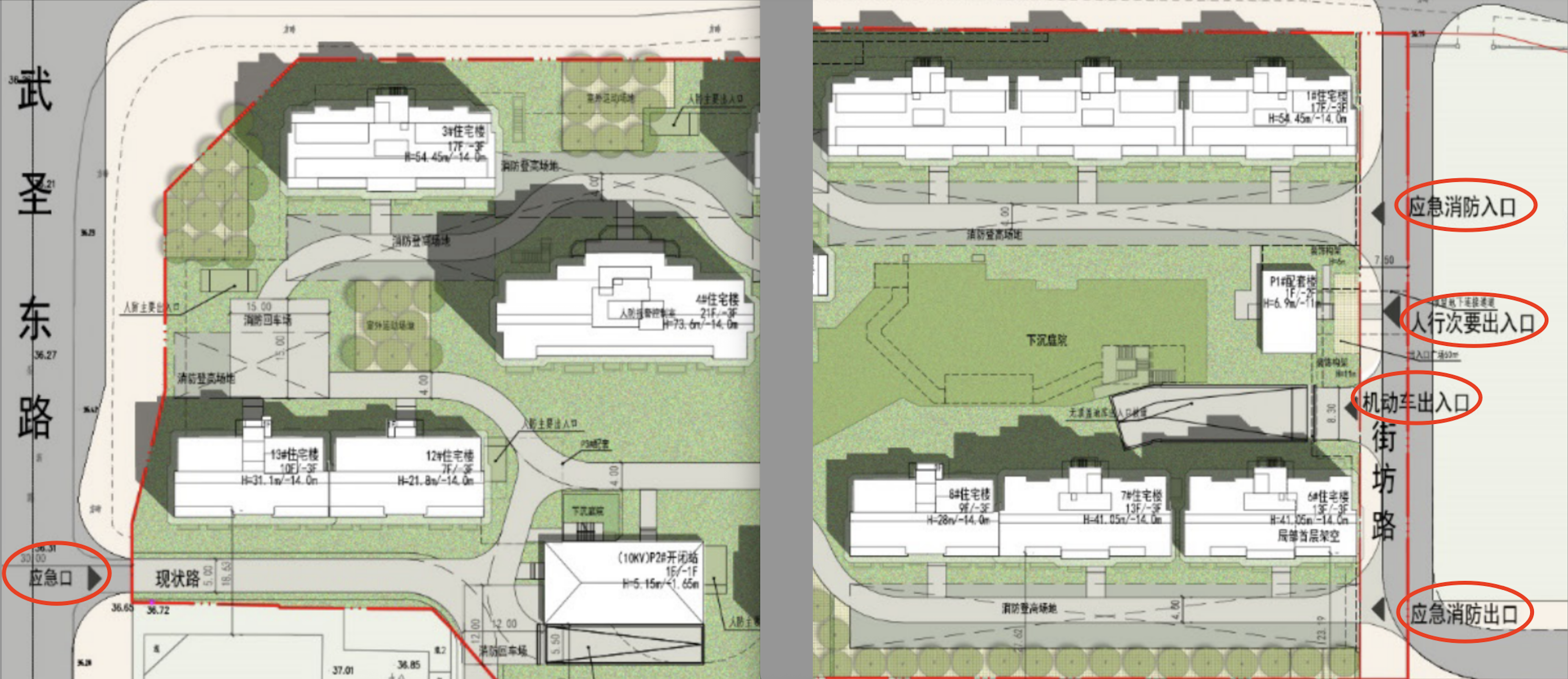
小区南排8栋楼,最高的一栋15层,总高47.35米,与南侧现状建筑间距19.24米。
总平图并没有标出南侧现状建筑的高度。
查了一下,南边松榆里小区多为6层板楼,按照旧层高标准,楼栋总高不超过18米。
2、关于用地范围内西南角道路的意见。
建设单位意见:本次方案落实挂牌文件要求,在西南角设置5米宽道路,并增设12*12米宽回车场,优化南侧现状的消防救援条件。
后续我司将尽快完成道路硬化施工,满足消防及居民出行需求,该道路对公众无条件开放。
3、关于开闭站的意见。
建设单位意见:本项目设置10KV开闭站一处。开闭站及电力规划方案已与电力相关部门沟通,符合电气专业相关设计规范,并取得电力主管部门同意。
依据相关规定,现开闭站与现状38号住宅楼之间的距离为20.2m,满足规范要求。后续开闭站运营过程中,物业公司将加强相关管理,避免噪音及污染对周边产生影响。
4、关于用地西侧地库出入口的意见。
建设单位意见:本项目机动车出入口的方案已取得交通主管部门同意。该出入口不作为车库排烟口使用。
后续将采取设置低噪声减震带及降噪路面等降噪措施,降低噪音影响,并加强运营管理,控制通行时段(避开夜间休息期),设置限速禁鸣标识,引导车辆低速通行,确保与居民作息相协调。
进深君并没在总平图上找到地库出入口……
西侧沿武圣东路的界面不到100米,只在西南角开了一个应急口。
机动车出入口开在了东侧街坊路上,这条街坊路身肩重任,除了车行,还有人行和消防车行出入口。
5、关于用地东侧街坊路的意见。
建设单位意见:依据挂牌文件要求,在0410-0001 地块内含1 条南北向宽度为7.5 米的街坊路,已取得交通委同意意见。
该街坊路由我单位负责建设,与项目同期建成并保证对外开放,由我单位进行养护和管理。
6、关于机动车位及非机动车位配建数量的意见。
建设单位意见:本项目配置不小于40%的电动汽车车位及0.55辆/户电动电动自行车。
机动车及非机动车配置数量、充电设施均满足相关文件要求。
7、关于住宅日照的意见。
建设单位意见:我单位委托有相关资质的设计单位采用专业日照分析软件进行日照分析,设计方案建筑日照符合国家及地方有关日照标准法律法规的相关要求。
按照方案建设后,本项目对周边现状建筑国家规范规定的日照标准未产生不利影响。
我局意见:建设单位意见属实,予以采信。
8、关于容积率的意见。
建设单位意见:按照挂牌文件,地块容积率2.8。我单位严格落实挂牌文件规划指标要求,委托有相关资质的设计单位编制建筑设计方案。
另,反馈意见通告页面没有同步最终版总平图。

去年11月25日,懋源控股以50.24亿元的总价拿下松榆里地块。折合楼面价6.21万/㎡,溢价率18.2%。
项目位于朝阳区潘家园街道,地处东三环至四环正中间,西大望路沿线,紧邻北工大西门地铁站。
这个地段有做高端改善的潜力,毕竟也在CBD商圈辐射范围内,但板块商业商务属性相较于双井、国贸还是差出几个LEVEL的。
成熟住区,生活配套完善,但商业档次不高,以眼镜城、古玩城等专业市场为主,缺乏吃喝玩乐购一体的综合商业。
除了环线和临铁优势,松榆里地块自身的综合素质分也非常高。
纯住宅用地,容积率2.8,限高60米(局部80米),算是比较舒适宜居的密度。
地形规整,东西长而南北短,面宽资源好,楼栋排布灵活,很适合打造大高板产品。
建设用地面积2.89公顷,拟建总建筑面积约13.24万㎡,其中地上建面约8.1万㎡。
规模适中,开发难度远低于祈年大街和永安里项目。

项目规划13栋住宅楼,住宅总建面80263.8㎡,共499户,户均建面161.85㎡。
预计户型面积段135/150/170/220/230㎡。其中150㎡为主力产品,户型占比近半。
北排3栋为17F小高层:
1#楼3个单元共102套,西边户170㎡,其余为150㎡户型;
2#楼3个单元共102套,两侧边户为170㎡,其余为150㎡户型;
3#楼1个单元共34套,均为170㎡户型。
中间2栋为21F高层:
4#楼1个单元共42套,户型建面约230㎡;
5#楼1个单元共42套,户型建面约220㎡。
5#楼北侧对着小区正门,另外三侧被下沉广场环绕,景观视野非常好,全边户房源,东西两侧各有一处3面开窗的全景舱。
南排8栋楼:
东南角6#楼和7#楼为13层小高层,其中6#楼首层东边户架空。
共51套住宅,均为150㎡户型。
8#楼9层18套,9#楼6层12套,10#楼8层两个单元共32套,均为起步135㎡户型;
11#楼为15层小高,共30套,建面约150㎡;
西南角12#楼7层14套,13#楼10层20套,均为135㎡户型。

朝阳首个全景舱,北向无赠送面积
地块为东西长而南北短的长方形,面宽资源非常好。
赠送比较简单,只有南向内嵌式阳台赠送一半面积,但由于面宽够大,整体赠送比还是相当可观的。
好房子新规发布以来,朝阳新盘基本都在北向做了大量设备平台赠送,而松榆里项目的楼栋北侧目前来看没有结构外建筑。

中央楼王栋5#楼侧边也有一部分赠送空间,打造出了空中浮岛的概念。
北边部分线条比较复杂,从效果图来看,北边有一个形状不规则的空间,也将实现三边临窗的视野。
这几个全景舱的效果预计十分惊艳,期待户型图。



4处下沉庭院,会所体系强大
人行出主要出入口在小区北侧。设有带装饰构架的景观大门,景墙沿街展示面约百米。
另外在东侧也有一处景观大门,并配有50㎡的出入口广场,6.9米高的社区配套楼。
向内是多处下沉庭院,面积非常大,由东向西串联起社区中央景轴的会所体系。西北角有多处室外活动场地。
地块出让文件中提到,鼓励设置下沉庭院,可通过住宅地块街坊路地下空间,实现与规划文化用地联通。
下沉庭院周边宜布局配套公共设施,做好地上、地下空间、室内外景观渗透,提升环境品质。
下沉庭院标高应与街坊路地下通道顺畅连接,实现人流动线无障碍衔接。
这也是北京首个在出让文件中提到下沉庭院详细设计要求的地块。
相关公司:懋源地产
财经号声明: 本文由入驻中金在线财经号平台的作者撰写,观点仅代表作者本人,不代表中金在线立场。仅供读者参考,并不构成投资建议。投资者据此操作,风险自担。同时提醒网友提高风险意识,请勿私下汇款给自媒体作者,避免造成金钱损失,风险自负。如有文章和图片作品版权及其他问题,请联系本站。
