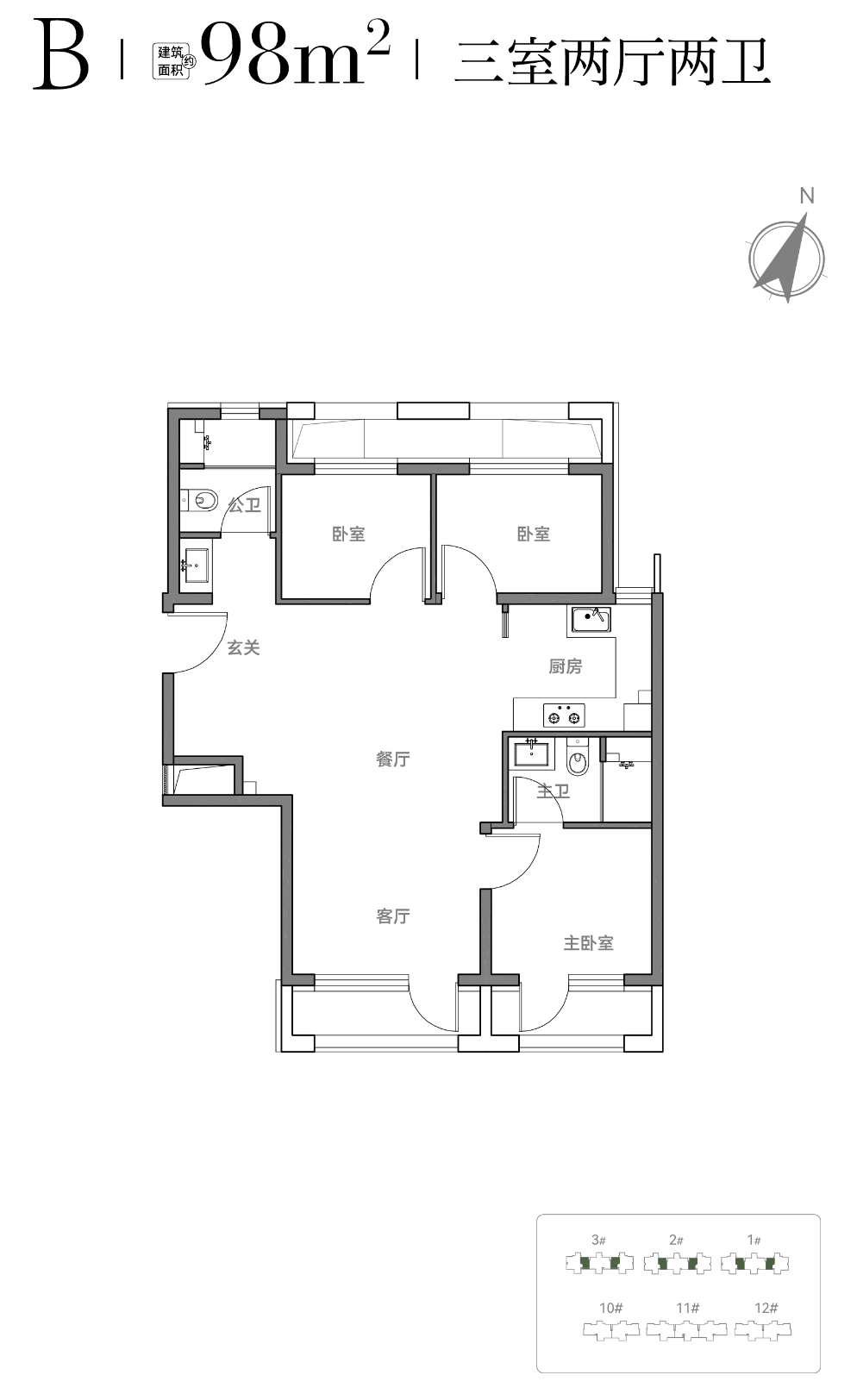
京投北熙区三区取证,546套、均价8.53万/㎡
北京进深 徐迪 4月20日,位于朝阳东坝的京投北熙区三区取得预售证。
北排1#、2#、3#楼+东南角的12#楼,共4栋546套。
主力户型72/98/99㎡,拟售均价约8.53万元/㎡。
项目所在A002-3地块,是京投发展2021年12月24日底价摘得的东坝三宗地块之一,也是三宗地块中成交价最高的一幅,总价70.7亿元,销售指导价定为8.6万元/㎡。
用地面积7.67万㎡,总建面19.3万㎡,地上建面13.7万㎡,容积率1.9。
商品住宅面积13.66万㎡,居住公服配套400㎡。
规划12栋住宅楼,北排6栋为18F小高层,南排为10F/11F洋房,总计1358户,面积段72-136㎡。
赶上了“好房子”时代,三区层高3米+,南北双向扩容空间,相较于一、二区产品,综合得房率大幅提升。
南向通面宽阳台,部分户型北向还有设备平台赠送,得房率约90%。
首批次6栋楼共696户,北排3栋为18F小高层,南排3栋为10F洋房。

2021年12月24日,京投发展以底价接连摘得朝阳区东坝车辆基地综合利用项目三宗地块,成交总价约175.3亿元,楼板价4.25万元/㎡。
①1101-A002-3地块,成交价70.7亿元,占地7.67公顷,规划建筑面积约13.7万㎡,销售指导价定为8.6万元/㎡。
②1101-A002-1、1101-A003-1地块,成交价约56.1亿元,占地5.72公顷,规划建筑面积约13.2万㎡,销售指导价定为8.1万元/㎡。
该地块要求套内建面90㎡以下住房面积占比70%以上,另需配建2万㎡保障性租赁住房。
③1101-A002-2、1101-A003-2地块,成交价约48.5亿元。占地6.4公顷,规划建筑面积约9.4万㎡,销售指导价定为8.6万元/㎡。

这一项目将被打造成京投发展北京的第五个TOD项目:北熙区。
总建面36.4万㎡,是一个大体量超级社区,规划34栋住宅楼。
其中落地区13栋,为20-26F高层;上盖区21栋,为6-18F洋房、小高层。
共3078套房源,分为三期开发。
2022年9月29日,一区4#-10#共7栋楼取证,共688套房源,面积段80-123㎡,拟售价格在7.86万-8.17万元/㎡区间。
2023年6月22日,二区森屿7#-11#共5栋楼拿证,共546套,主力户型为80-117㎡两居,另有150套135㎡四居和少量129㎡三居户型,拟售价格在8.3万元-8.47万元/㎡区间。
2024年10月1日,一区1#-3#栋取证,共252套房源,主力面积段为152-172㎡四居,少量115-117㎡两居和155㎡三居。拟售价格在8.27万-8.4万元/㎡区间。
截至目前,项目累计入市房源共1486套,网签总数876套,整体去化率约59%。
项目成交均价约7.94万元/㎡,网签金额总计70.12亿元。


一区实景图↑

二区·森屿效果图↑

三区洋房外立面效果图↑

三区小高层外立面效果图↑
项目位于朝阳区东坝东八间房路北侧约130米,靠近东五环,临近地铁12号线 、3号线。
周边最近的公交站为北岗子站,步行五分钟范围有多条公交线路。 商业方面,周边有恒大城市广场、金隅嘉品MALL、颐堤港、朝阳大悦城、万达广场(在建)、活力东方购物广场。
教育方面,周边有北师大奥林匹克花园实验小学、首都师范大学朝阳小学、北京市陈经纶中学、北京中学东坝校区、人大附中朝阳分校、东北师范大学附属中学朝阳学校等。
医疗方面,周边有北京市第一中西医结合医院(东坝院区)、北京安贞东方医院(在建),周边还有民航总院、华信医院、望京医院等。
财经号声明: 本文由入驻中金在线财经号平台的作者撰写,观点仅代表作者本人,不代表中金在线立场。仅供读者参考,并不构成投资建议。投资者据此操作,风险自担。同时提醒网友提高风险意识,请勿私下汇款给自媒体作者,避免造成金钱损失,风险自负。如有文章和图片作品版权及其他问题,请联系本站。
