未科中轴超级大盘!低碳岛规划出炉!拟建58幢住宅!
未科核心区即将迎来大规模新房供应!
近日,建发低碳岛地块项目——云湖之城,公示了建设规划方案。从规划上看,项目将带来4大住宅组团共58幢11-17F住宅,和1个商业组团,预计可售套数超2500套,体量非常可观。

据悉,项目初步规划建面约105-120-139-155-170-199-230㎡户型,限单价3.61万/㎡,起步总价约380万,计划今年10月首开。

未科核心区效果图(杭州储出[2024]43号地块即为建发云湖之城)
整个项目可分为五大组团,总用地面积超24.5万方,总建筑面积约70万方,其中地上建筑面积约46.28万方。
YH090702-03地块为商业用地兼容商务金融用地,将建设15幢清一色3F的办公楼、商业楼,未来可能会被打造成产业园区。
地块西侧的YH090702-18-2地块、YH090702-18-3地块,均为商业用地,各规划建设1幢2F商业楼。



YH090702-06地块为二类城镇住宅用地,规划12幢14-17F住宅,园区有体育健身场地、文化活动场地等多处景观和2处水系。


地块西侧的YH090702-20-2地块、YH090702-20-3地块,均为商业用地,各规划建设1幢2F商业楼。

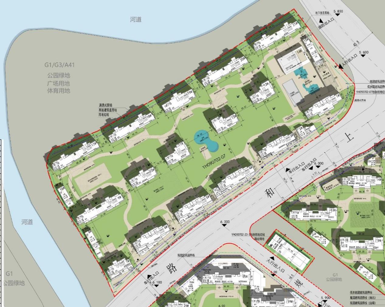
YH090702-07地块为二类城镇住宅用地,是最靠近地铁站和万象城的组团,位于整个园区的最北面,西北两面环河,北面同河道之间规划为公园绿地、广场用地、体育用地。
地块内部规划了16幢14-17F住宅,园区中心和东侧均规划了水池,东侧靠近人行出入口规划了下沉庭院。


YH090702-05地块,是四个住宅组团中,体量最大的一个,共规划20幢14-17F住宅,同样规划了2处水池、1处下沉庭院、1300㎡的集中绿地、780㎡体育健身场地等景观。


YH090702-10地块位于小区最南面,距离绿汀路地铁站最远,但容积率只有1.5,包含住宅、商业、服务设施等。
其中住宅共规划有10幢,全部是11-13F小高层,东侧靠人行出入口处规划一处水池;最北侧自带一个农贸市场;南面沿水乡西路的部分规划打造3幢商业及商办楼和1幢社区配套,未来将打造成杭州书房、儿童成长驿站、托育机构、文化活动中心、生活服务站、居家养老服务照料中心、体育活动用房、社区食堂等。


文章来源:乐居买房
财经号声明: 本文由入驻中金在线财经号平台的作者撰写,观点仅代表作者本人,不代表中金在线立场。仅供读者参考,并不构成投资建议。投资者据此操作,风险自担。同时提醒网友提高风险意识,请勿私下汇款给自媒体作者,避免造成金钱损失,风险自负。如有文章和图片作品版权及其他问题,请联系本站。
