天津5区保障房规划披露!都在中心城区!
近期,天津市规划和自然资源局相继公示了河西、河东、河北、红桥四个区的保障性住房项目规划信息。
红桥丽水苑地块
12月17号,丽水苑二期地块保障性住房项目建筑工程设计方案总平面图公示。
该保障性住房项目位于红桥光荣道板块,板块内最新的新房为仁恒星源世纪,已经售罄。
该地块最初为商品房用地,由地铁资源于2022年11月第四批次集中供地时摘得,总价6.14亿元,成交楼面价14203元/㎡。
今年6月,地块退地,由商品房改为建设配售型保障性住房。

规划信息显示,该保障性住房项目共4栋住宅楼,均为26F到顶的高层产品,整个社区为架空层设计。申报的地上住宅总建筑面积42885㎡,户数458户,户均面积约94㎡。

车位方面,共有281个机动车停车位,其中地上31个,地下250个。


河东中山门
12月12号,中山门胜利巷地块建设保障性住房项目建设工程设计方案总平面图公示。
该保障性住房项目位于河东区中山门,板块内无新房项目。
项目东侧紧邻天津第九十八中学(龙潭路校区),西侧为东兴路辅路,北侧为一天主教堂,南侧为和盛公寓。
项目不到2公里的范围内有二宫公园、中山门公园、天津第四十五中学(龙潭路校区)、万爱商圈、地铁9号线中山门站等城市配套。

规划信息显示,该保障性住房项目共3栋住宅楼,均为17F到顶的小高层产品,整个社区为架空层设计。申报的地上住宅总建筑面积17830㎡,户数204户,户均面积约87㎡。


车位方面,共有127个机动车停车位,其中地上15个,架空层停车位112个。
河北铁东路
12月13号,志成路百利集团地块保障性住房项目建筑设计方案总平面图公示。
该保障性住房项目位于河北区铁东路,板块内无新房项目在售。
项目东北侧紧邻曙光路菜市场,周边1公里的范围内有北宁湾万福生活广场、天津第三十五中学、3号线铁东路地铁站等城市配套。

规划信息显示,该保障性住房项目共5栋住宅楼,均为10/17F到顶的小高层产品。地块总建筑面积32050㎡,127个机动车停车位。


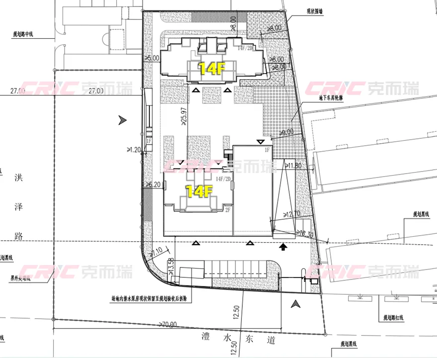
河西八大里
12月16号,河西区洪泽路地块保障性住房项目建设工程设计方案总平面图公示。
该保障性住房项目位于河西区八大里,板块内无新房项目在售。
项目北侧与海河直线距离约600米,周边1公里范围内有地铁1号线陈塘庄站、天津师大二附属小学德贤学校、天津市第四中学、津都湾广场等城市配套。

规划信息显示,该保障性住房项目共2栋住宅楼,均为17F到顶的小高层产品,整个社区为架空层设计。申报的地上住宅总建筑面积8044㎡,户数104户,户均面积约77㎡,机动车停车位共67个



据了解,2024年天津通过新建、转化方式筹集配售型保障性住房7000余套,其中计划新选址建设配售型保障性住房1000套。
今年5月,天津市首个配售型保障性住房——丽水苑二期地块项目开工。12月11日,国家开发银行天津分行向红桥区丽水苑配售型保障性住房项目发放了开发贷款2.16亿元。这是天津首笔面向配售型保障性住房的开发贷款,将为项目顺利推进提供有力支持。
丽水苑项目获得的低息贷款授信总额度为5亿元,建成后可向工薪收入、引进人才等群体提供约458套住房。
从此次河西、河东、河北、红桥四个区公示的保障性住房来看,位置都很不错,各类城市配套设施十分完备。
来源:克而瑞房产信息
文章来源:乐居买房
财经号声明: 本文由入驻中金在线财经号平台的作者撰写,观点仅代表作者本人,不代表中金在线立场。仅供读者参考,并不构成投资建议。投资者据此操作,风险自担。同时提醒网友提高风险意识,请勿私下汇款给自媒体作者,避免造成金钱损失,风险自负。如有文章和图片作品版权及其他问题,请联系本站。
