上半年海淀销冠出炉!穿越市场周期的豪宅销冠是怎样炼成的
6月26日,北京楼市新政出台,连发重磅利好:一是降低首付比例,五环外二套房首付比例直接降为30%;二是降低贷款利率,其中五环外二套房商贷利率降为3.7%;三是放松二套房认定标准,对于二孩及以上的多子女家庭,购买二套住房的将认定为首套房贷。史上最低的首付比例与房贷利率,令市场一片沸腾。近期销售数据也表明,北京市场热度已经明显上升!

(数据来源:北京住建委官方网站)
01 销售霸榜丨强势表现 豪宅封王
政策的利好传导,在香山樾这类城市核心资产,表现的尤为明显。香山樾,由越秀地产与北京城建地产两大国匠联袂打造,从入市开始就持续受到市场关注,各方对香山樾的期待值也相当高。作为区域内近20年都难得一见的纯质高端项目,香山樾也不负众望,在北京市场行情较冷的四月、五月,连续登顶北京豪宅成交销冠,蝉联北京销售TOP3,10万+豪宅成交TOP1、海淀销售TOP1。另据业内专业统计网站天朗数据平台信息,在对北京上半年销售数据盘点中,香山樾荣登北京市二季度销售金额TOP2、北京市上半年10万+豪宅销售金额TOP2,并再次蝉联海淀10万+豪宅销售金额TOP1,香山樾,不止为北京红盘,更是跻身全国豪宅顶流!
02 区域霸榜丨万亿海淀 臻席香山
香山樾位于首都八大墅区之首的香山墅区,是北京豪宅市场独树一帜的存在,多年来土地供应寥寥。豪宅扎堆的现状与土地供应的稀缺,共同促成了圈层的纯粹性,也形成了区域价格一直居高不下的市场现状,据悉这里的二手房单价普遍在15万+,部分甚至达到20万+。
香山,作为北京的“精神海拔”,贵脉流长,立于北京的豪宅地图之巅。一直以来,海淀都是北京楼市供地最稀缺的区域之一,而海淀最稀缺的恐怕就是香山墅区。即使将目光放长到20年的维度,高端改善用地供应也不足10宗,而近四年北京市过百宗供地中,香山墅区仅占了2宗,皆为北京隐贵所珍藏。这就注定了香山樾一登临,天生的豪宅属性,引起了北京市场巨大的“冲击波”。
而香山樾位于香山墅区的核心位置,距离香山主要山体约2000米左右,最恰当的享山距离,带来的良好的观山视野;而万亿海淀丰盛配套的加持,形成了香山樾山景,城景兼得的优越地利。

区位示意图
03 产品霸榜丨隐奢注魂 示范中国
豪宅成交周期长,高净值客户眼光挑剔,但还可以月月霸榜,不仅是地段的缘故,跟香山樾自身的规划建设也有重要关系。香山樾约7.38万平方,在香山墅区拥有如此“豪横”的面积,但香山樾并未为了利润而尽可能的多规划面积,而是奢侈的规划为容积率仅约1.05,全四层墅境大平层,相当于大面积用来造园了。隐奢豪宅,外有香山,内有盛林,隐于景,奢于景莫过于此。

展示区实景图
时下,香山樾实景展示区已完美境呈,当下所见,即未来所得,香山樾再次凭借中国隐奢园林样本的盛誉,在北京豪宅市场建立了稳如磐石的地位,开启了未来豪宅关于土地,品质,生活的全新思考与实践。

展示区实景图
香山樾以隐奢理念为核心贯穿,在入口大门上,即可初见端倪。宽约24米、高约5米的首开区入口大门,名门之风沉稳卓然,大门两侧的迎宾景墙,以自然石面凭借而成,展现背靠西山的沉稳壮阔,极奢中透出庄严,完美诠释了“尊礼迎人”。


展示区实景图
园区入口处,匠造了一方瀑布景墙,潺潺流水沿石墙落下,形成“明月松间照,清泉石上流”的人文意境。这已经够惊艳的了,而据悉,香山樾交付后社区正式的西大门,正好对望香山,规格更宏大,气度将更胜一筹。


展示区实景图
古树曾见盛世荣光,园区里三颗约三百年古树,被精心保留、保护,为围之营造可栖可游的庭院,共鉴历史的龙笔走蛇。古树庭院下沉的观景游廊,上可观赏,下可游览,做到了立体的景观呈现。而未来,将围绕另外两棵古槐,设计更大更丰富的互动场地,包涵下沉会客厅、活动草坪、游园步道、流水瀑布等,怀古之幽情,隐逸之浓荫,赏玩之闲趣,共生共成,芳华长青。

展示区实景图
一砖一瓦,皆臻至。香山樾由越秀与北京城建南北两大国匠联袂打造,集合两大国匠的精工之力,灌注细节之中。从展示区的实体楼可以窥见其精妙之一。悬鱼樾、飞云脊、歇山顶的经典设计,有“鱼跃龙门”的美好寓意,更是中国礼制的至高呈现。

展示区实景图
而那抹被成为国色的天青色,则是由中国专业的大师和顶级的厂家,一起研发了十个月,才研发出的仿汝窑的天青色陶板,可以说是全国家首家,把仿汝窑的工艺,应用到了建筑外立面上。它随着天空色的变化而映照,塑造出天地赋予的有生命的艺术品。
由玻璃幕墙、蓝眼睛石材、天青色陶板共同成就的建筑立面,实现了“三缝合一”,成就浑然一体的效果。除此之外,单元大堂的建筑线脚、景观铺装、室内铺装,亦都是严格对缝,足见项目匠心打磨的用心与精工的实力。

展示区实景图
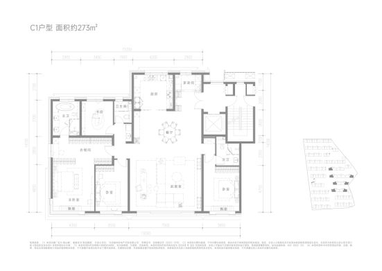
时代的豪宅,更应符合时代的生活需求。香山樾在户型上,深研当代高净值家庭的生活所需,提出了3大户型创新,从建筑面积约273㎡的样板间,我们可以看到这种创新所带来的超越享受。
样板间整体是东方风格,体现温润如玉的君子风范。地面采用皇家白玉,表达温润儒雅的理念。电视背景墙采用简一碧海伽蓝岩板,木饰面半山纹,契合香山风光。在配置上,也是甄选国际豪宅品牌,于日常中,孕育出温润的静好时光。
整个南向面宽约19.4米,进深约14.3米,阳光风景在一窗一屏的敞然豁达里,带来大气,舒适的生活享受。同时南向双主卧也是套房设计,满足家庭生活的亲密性更保障私密性。

展示区实景图
豪宅营造难,热销登峰难,2000万级的豪宅持续热销更难。从“中国隐奢豪宅范本”的伟大战略构想,到“中国隐奢园林样本”的臻质呈现,每一次的躬身匠著,汇聚成进步的阶梯,香山樾,不愧为“地产新常态”下的完美研读样本,而这个时代,也正在犒赏产品的踏实笃行者和人居的理想主义者。
财经号声明: 本文由入驻中金在线财经号平台的作者撰写,观点仅代表作者本人,不代表中金在线立场。仅供读者参考,并不构成投资建议。投资者据此操作,风险自担。同时提醒网友提高风险意识,请勿私下汇款给自媒体作者,避免造成金钱损失,风险自负。如有文章和图片作品版权及其他问题,请联系本站。
