克而瑞好房点评网 | 比邻榜:浦东内环“森系”新贵:开云·恒瑞里,能否成为2026年改善置业的优选?
在2026年的上海楼市,当“核心资产”与“居住舒适度”成为购房者心中天平的两端,我们该如何选择?是坚守市中心的繁华,还是拥抱近郊的宁静?对于身处浦东的改善族而言,似乎总有一个两难的选择:想要陆家嘴或张江的高效通勤,又渴望推窗见绿的诗意生活。
今天,我们要聊的这个项目——开云·恒瑞里,或许正在尝试给出一个完美的“双解”。作为浦开集团在北蔡楔形绿地核心的匠心力作,它不仅在地理位置上占据了浦东内中环之间的稀缺节点,更在产品力上打出了“纯无连廊小高层”的王牌。究竟它是如何平衡城市效率与自然静谧的?让我们一同深入测评。
地段解码:三大高能板块交汇处的“翡翠之心”
买房首看地段,但开云·恒瑞里的地段价值,不仅仅在于“内中环之间”这个地理标签,更在于它所承载的城市战略意义。
项目位于浦东新区北蔡镇,这里是上海2035规划中十大楔形绿地之一——北蔡楔形绿地的核心区域。这片总面积约10.6平方公里的土地,被赋予了“城市森林秘境”的使命,生态占比高。你可以将其理解为浦东腹地的一块巨大“绿肺”,而开云·恒瑞里就镶嵌在这块翡翠的中心。

从产业能级来看,这里处于陆家嘴国际金融城、张江科学城、前滩国际商务区的交汇辐射区。这意味着,无论你在陆家嘴从事金融工作,还是在张江投身科技创新,开云·恒瑞里都能提供一个恰到好处的居住距离。它既避免了核心区的拥挤与高昂成本,又享受了核心区的外溢红利。
此外,规划中的芳甸路南延将成为贯通浦东南北的繁华中轴,未来将直接连接世纪公园和联洋国际社区。加上现有的罗山高架,工作、生活、休闲的切换将如行云流水般从容。这种“离尘不离城”的区位属性,正是当下改善型客户最为看重的核心价值。
产品主义:纯粹低密,重新定义“舒居”标准
在高层住宅林立的上海,“纯粹”二字显得尤为珍贵。开云·恒瑞里在产品规划上,做了一次大胆的“减法”与“加法”。
◈ 减法:去连廊,真低密
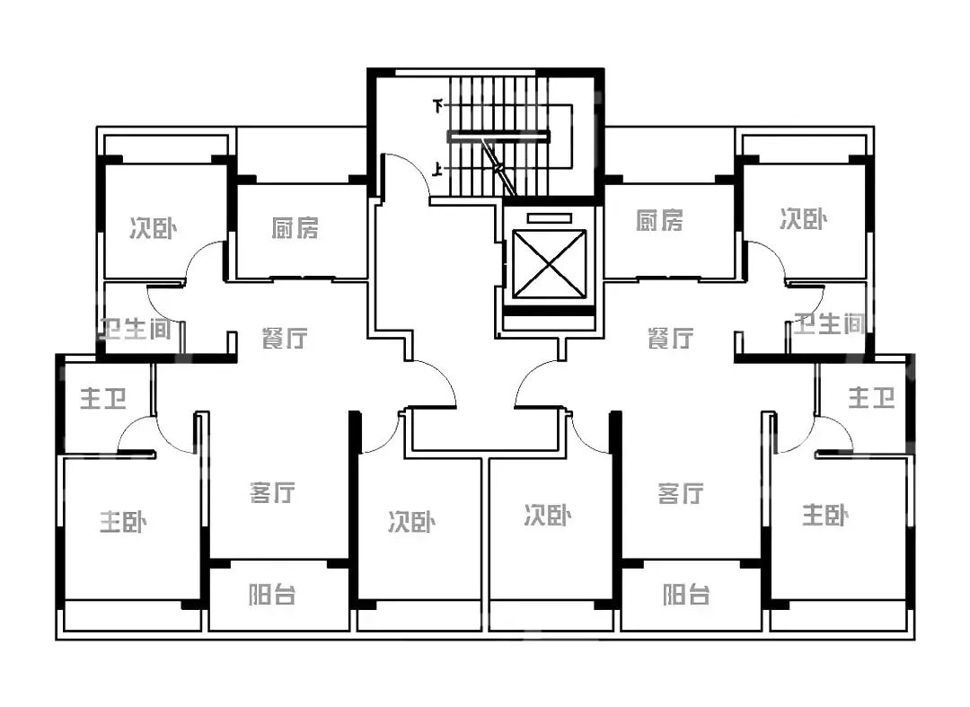
项目规划了6栋14层的小高层住宅(含1栋保障房),容积率控制在2.3。最引人注目的是,它采用了全系无连廊设计。

项目效果图:现代极简建筑风格
要知道,市面上许多同面积段的产品为了凑户数,往往采用连廊设计,导致中间户私密性差、通风采光受阻。开云·恒瑞里通过优化布局,换取了每一户的独立性与通透感。同时,社区实行全人车分流,地面不设停车位。这不仅保障了老人孩子的活动安全,更让地面空间完全释放给景观,居住界面的纯粹度极高。
◈ 加法:美学立面,荷叶灵感
建筑外观设计上,项目汲取了“江南水乡、荷叶田田”的在地人文印象。立面采用现代极简风格,主材选用铝板、大面积玻璃和金属,色调素雅。

项目效果图:荷叶弧线立面细节
特别是沿街立面,提取了荷叶的柔美弧线元素,结合转角倒角弧线和山墙波浪造型,为建筑平添了一份松弛感。这种设计不仅美观,更在阳光下呈现出丰富的光影变化,让建筑本身成为风景的一部分。
户型鉴赏:建面约93-138㎡,精准匹配改善需求
对于改善型客户而言,户型不仅是空间的划分,更是生活方式的载体。开云·恒瑞里主力推出建面约93㎡-138㎡的户型产品,覆盖了从首改到深度改善的全生命周期需求。
◈ 建面约115㎡:飞机户型的极致演绎
以备受关注的建面约115㎡户型为例,它堪称同面积段中的“优等生”。

房型图:建面约115㎡户型布局
■尊崇归家
:入户配备双开门电梯+独立前厅,仪式感满满,同时也增加了实际的收纳空间。 ■方正布局
:经典的“飞机型”布局,三开间朝南,动静分区清晰。这种布局最大程度减少了过道浪费,提高了得房率和使用效率。 ■超大宽厅
:客厅与餐厅一体化设计,形成超大的礼宾宽厅,视野开阔,足以容纳家庭聚会、儿童玩耍等多种场景。 ■层高优势
:标准层层高约3.15米(6号楼约3.1米),相比传统2.9米的层高,空间感显著提升。
◈ 其他户型亮点
除了115㎡,项目还有建面约93㎡的入门改善户型和建面约138㎡的深度改善户型。

房型图:建面约93㎡户型布局
所有户型均得益于无连廊设计,南向视野完整,尤其是部分房源可直面长征河与北蔡中心河的双河景观。想象一下,清晨在河畔慢跑,傍晚在阳台看夕阳洒在河面上,这种生活场景并非遥不可及。

房型图:建面约138㎡户型布局
配套生活圈:全能资源,触手可及
一个好的社区,不仅内部要舒适,外部配套更要强大。开云·恒瑞里的周边配套,可以用“成熟且高能”来形容。

交通便捷
项目距离18号线北中路站约900米。18号线被称为上海的“换乘王”,直达龙阳路TOD、杨浦滨江、陆家嘴;换乘13号线仅需3站即可到达张江核心区。对于在张江工作的精英人群来说,这是一条黄金通勤线。
商业繁华
周边汇聚了长泰广场、浦东嘉里城、证大喜玛拉雅中心等高端商业体。值得一提的是,正在建设中的龙阳路枢纽综合体,未来将成为上海新的商业地标,进一步提升区域能级。日常购物有山姆会员店,周末休闲有嘉里城,生活便利度极高。
教育资源
虽然新房不承诺学区,但项目周边3公里范围内聚集了福山正达外国语小学、建平中学西校大唐校区、华东师范大学第二附属中学等知名学校。浓厚的教育氛围,为孩子的成长提供了良好的环境。
医疗保障
直线3公里范围内有7个一级及以上医院,包括上海中医药大学附属曙光医院(东院),为家人的健康保驾护航。
总结:为何开云·恒瑞里值得你关注?
回顾2026年的上海楼市,分化已成为常态。那些拥有稀缺资源、产品力过硬的项目,依然受到市场的热捧。开云·恒瑞里之所以能成为焦点,主要基于以下三点核心逻辑:
不可复制的生态资源
:占据北蔡楔形绿地核心,双河环抱,这是市中心难以企及的自然馈赠。 极致的产品纯粹度
:纯小高层、无连廊、全人车分流,在有限的土地上做到了居住舒适度的最大化。 均衡的价值底座
:介于陆家嘴、张江、前滩三大高地之间,交通、商业、教育配套成熟,没有明显的短板。
当然,任何项目都不是完美的。例如,项目周边的城市界面正处于更新阶段,部分规划道路(如芳甸路南延)尚需时间落地。但正如投资一样,看得见的现在决定下限,看得见的未来决定上限。
对于想要在浦东安家,既不想放弃城市繁华,又渴望回归自然生活的改善型家庭来说,开云·恒瑞里无疑是一个值得重点考虑的选项。目前,项目示范区已正式开放,建议你亲自去现场感受一下那份“于繁华深处,泊心森邻之境”的独特魅力。
特别提醒
1. 本产品生成的内容是由AI生成,为算法和模型的运算结果,仅供参考,不构成投资建议。2. 本产品生成的内容(包括但不限于图片、数据、文字等),并未获得所有的相关权利方的授权,用户需确保其使用、传播(特别是商业用途)时不侵害他人享有的权益。3. 本产品运营方不对用户因使用生成内容而导致的任何直接、间接或附带后果负责。


财经号声明: 本文由入驻中金在线财经号平台的作者撰写,观点仅代表作者本人,不代表中金在线立场。仅供读者参考,并不构成投资建议。投资者据此操作,风险自担。同时提醒网友提高风险意识,请勿私下汇款给自媒体作者,避免造成金钱损失,风险自负。如有文章和图片作品版权及其他问题,请联系本站。
