评测|西咸新区不限购低密楼盘 崇文尊域万樾府全维度评测
泾河新城是西咸新区的五大组团之一,地处大西安正北部,自古文化名人辈出,历史文化资源丰厚,泾河和渭河从这里穿城而过,滋润着泾河新城这片热土。本期乐居小编和大家分享的楼盘便是区域内的崇文尊域万樾府,一起来看看吧!
点评内容:崇文尊域万樾府主打板式小高层,社区景观设计较好,面积区间106-131㎡。
适合人群:崇文尊域万樾府均价13500元/㎡,首付约40万起,适合手头资金有限的刚需购房者,以及被限购的置业人群。
项目亮点
亮点一:低密社区
崇文尊域万樾府容积率仅为2.49,绿化率高达37%,对比一般的高层社区,密度低绿化率更高。
亮点二:纯板楼设计
万樾府均为板式小高层设计,保证了每家每户的通透性和采光,居住舒适度较高。
亮点三:不限购
崇文尊域万樾府位于西咸新区泾河新城,有着不限购的天然优势,对无购房名额的置业来说,是一大利好。
价格分析评分:7.0分
近两年,阳光城、金地、绿地、奥园、正荣、卓越、隆基泰和、万科等大量品牌房企集中进驻泾河新城,在此基础上区域地价水涨船高,2019年4月,泾河新城区域土拍最高楼面价仅为4110元/㎡,到2021年隆基泰和摘地泾河新城楼面地价高达8451元/㎡,短短两年时间,地价翻倍增长。更有数据显示,2021年第一季度,泾河新城以26.9%的GDP增速位列西咸新区第一名,领跑大西安各个板块。在此基础上,区域楼盘自然炙手可热,保值性不言而喻。
泾河新城区域内在售的楼盘有金地乐华翰林艺境、黄冈学府城、南飞鸿云境澜湾等,其中金地乐华翰林艺境均价14500元/㎡,黄冈学府城14300元/㎡,南飞鸿云境澜湾均价14000元/㎡。崇文尊域万樾府目前在售房源均价约13500元/㎡,略低于区域内楼盘均价,还是有一定优势的。
评测师有话说:目前西安市主城区房价水涨船高,对刚需客来说压力过大,不限购的泾河新城成为不少年轻人置业的新选择。
楼盘规划评分:7.5分
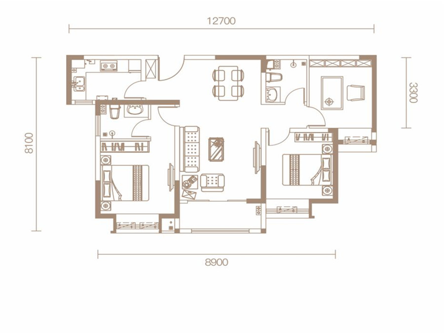
崇文尊域万樾府占地约262亩,建面约67.7万方,容积率约2.49,绿化率约37%,共计3453户,规划26栋小高层,一梯两户/两梯三户为主,主力户型面积区间106-131㎡。
在园林打造上,整个景观设计面积高达近9万平米,整体布局按照“三轴四区”的造园手法,将青云入口、崇文广场、云水景墙、景观亭、装饰小景等多重景观组团融入其中。此外,项目内部还规划了康体跑道、儿童乐园、健康步道、崇实廊架等空间,也让社区景观不再只具备观赏功能,更能满足全龄段业主的入场活动、社交、休息所需。

评测师有话说:大社区、低密楼盘、纯小高层板楼设计、不限购,崇文尊域万樾府优势还是非常明显的。
户型分析评分:8.0分
户型一:106㎡三室两厅一卫
106㎡为全朝南户型,东西面宽约8.9米,南北进深约8.1米,为三室两厅两卫设计,采光较好,冬日房间内的保温性更好一些;朝南的卧室均带有飘窗,增加房间功能性的同时,也提升了居住区的层次感,一举两得。
从生活动线上来看,106㎡户型门口左手边是小餐厅,右手边是“L”型厨房,购物回来后不用穿堂过户,可第一时间收纳瓜果蔬菜等,保证了客厅等公共区域的卫生和整洁;朝南客厅与餐厅离而不隔,无形中增大了活动区域的面积;主卧紧邻客厅,带有独立卫浴,功能齐全;客厅东侧是儿童房/书房/客卫,能够满足一家人的基本居住需求。

评测师有话说:106㎡户型功能齐全,方方正正,无浪费面积,能够满足家人的基本生活需求。
户型二:131㎡四室两厅两卫
131㎡户型属于市面上比较常见的动静分离且南北通透的户型,南向东西面宽10.3米,北向东西面宽13米,南北进深约8.6米。从朝向上来看,131㎡户型客厅/主卧/次卧朝南,厨房/餐厅/儿童房/客卫/书房朝北,均为全明设计,功能区完备,各区域空间分配合理。
从生活动线上来看,131㎡户型外侧是动区,其中客厅朝南外接生活阳台,独立餐厅朝北,与U型厨房相连,日常用餐家庭活动等空间宽敞;朝南主卧室位于最内侧带有独立卫生间,安静又私密,与南次卧一起与北向儿童房和书房相对,此外客卫位于南北次卧和书房的中间位置,方便家人日常使用。

评测师有话说:对家有二孩的刚需或者刚改置业群体来说,崇文尊域万樾府131㎡四室两厅两卫或许是个不错的选择呢!
交通出行:7.0分
崇文尊域万樾府周边规划有10号线支线,16号线,2号线延伸线等,但目前站点还未确定。
崇文尊域万樾府200米以内有近10条公交线路,包括881路、1071路、1180路等,其中881路从西安北客站出发,途径文景山公园、正阳大道等城市交通要道,终点站是茶马北路泾干四街口,是西安主城区通往泾阳的一条重要的公交线路。
崇文尊域万樾府周边东西走向的主干道有泾河大道,南北走向的主干道有沣泾大道、正阳大道和包茂高速,其中沣泾大道是贯穿西咸新区的一条主干道,向南可到达沣东新城,向北可到达泾河新城,双向10车道,日常路况较好,基本没有发生堵车现象。
评测师有话说:崇文尊域万樾府目前周边暂无地铁配套,但自驾出行堵车可能性较小,较适合自驾出行。
周边配套评分:7.5分
崇文尊域万樾府2公里以内的学校有崇文中学、泾河第一小学,此外,项目4公里以内还有西咸新区黄冈泾河学校,该学校定位为有西安特色的高端民办K12学校,目前已形成一校三部:高中部、初中部、小学部的发展格局,是区域内名校之一。

崇文尊域万樾府2公里以内的医院有泾河医院、泾河新城永乐中心卫生院、崇文卫生院等,其中泾河医院由西安交通大学与泾河新城携手共建,占地240亩,规划建筑面积23万方。

崇文尊域万樾府500米以内是静安荟奥莱公园,是集购物餐饮娱乐和休闲于一体的大型商业中心,环境优美,交通便利,服务良好。


崇文尊域万樾府500米以内有六艺公园,该楼盘1公里内有泾阳崇文塔。据了解,崇文塔由泾阳人尚书李世达倡导主持,南京镇江工匠官施工所建,是中国最高砖塔,为全国保存最好的砖塔之一。

评测师有话说:崇文尊域万樾府位于泾河新城较为核心的位置,周边有崇文塔和静安荟奥莱公园,外出休闲和购物还是比较方便的。
文章来源:乐居买房
财经号声明: 本文由入驻中金在线财经号平台的作者撰写,观点仅代表作者本人,不代表中金在线立场。仅供读者参考,并不构成投资建议。投资者据此操作,风险自担。同时提醒网友提高风险意识,请勿私下汇款给自媒体作者,避免造成金钱损失,风险自负。如有文章和图片作品版权及其他问题,请联系本站。
