5栋别墅+洋房!古城核心新盘规划出炉!
乐居买房苏州 古城再添别墅新品!
瑞嘉商业发展金阊地块规划出炉
拟建5栋3-7F住宅
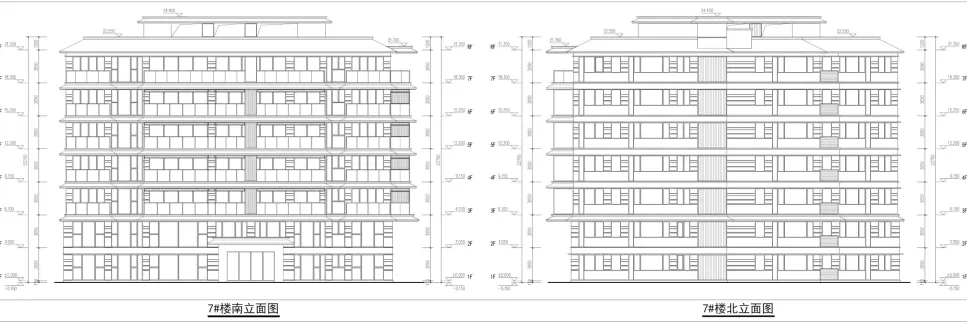
其中4栋3F别墅、1栋7F洋房
据爆别墅仅13套、洋房14套
体量非常小,堪称古城迷你别墅社区!

5月20日,苏州瑞嘉商业发展姑苏金阊街道苏地2024-WG-Z08号地块,时隔近一年规划终于出炉。

根据规划,项目拟建5栋别墅+洋房产品,其中4栋3F别墅、1栋7F洋房。

地块是苏州瑞嘉商业发展有限公司于2024年7月10日底价竞得,成交总价13197万元,楼面价20500元/㎡。

天眼查显示,苏州瑞嘉商业发展有限公司由苏州历史文化名城发展集团有限公司全资控股。

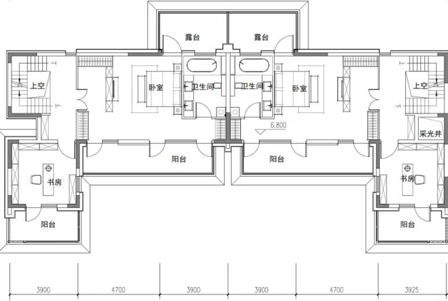
洋房产品:
1梯1户,4房2厅3卫
南向大面宽,多套房,卧室开间大


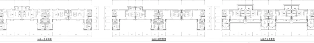
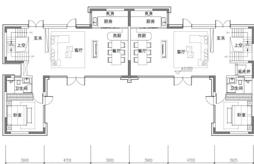
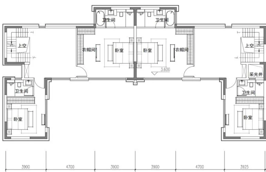
洋房一层仅2户,1梯1户设计,公示两款户型。

西边户,4房2厅3卫。约17米南向面宽,全屋各个空间均为大开间,南向双联阳台约9.8米,主卧6.3米,次卧分别为3.5、3.3米。LDKB一体式设计,中西双厨+家政间配置;双套房朝南,采光充足。
东边户,4房2厅3卫。约12.5米南向面宽,三个卧室均朝南,其中2个均为套房。中西双厨、餐客厅、书房分布在北向。卧室开间3.9、3.5、3.3米。
别墅产品:
首层3.6米层高、全屋4大套房
超多赠送,私家庭院,南阳台+北露台

别墅曝光1个户型,南向面宽约12.5米。

首层高3.6米,二层高3.2米,三层高2.8米。

一层户型:
一层,中西双厨+餐客厅与一个套房半围合布局,形成私家庭院。餐客厅开间8.6米,卧室开间3.9米。

二层户型:
二层,为2个套房,其中1个大套房带独立衣帽间+开敞卫生间。

三层户型:
三层,为豪华套间。主卧大套房,开间8.6米,步入式衣帽间,卫浴含双台盆+浴缸,此外主卧连接南阳台、北露台,舒适度拉满。另外一个书房也带南向阳台。

坐标古城核心位置,周边配套成熟
区域2大别墅新盘待售
项目位于姑苏区金阊街道桐泾北路西、东沁苑东,项目占地面积5364.6平方米,建筑面积9662.92平方米,计容面积6196.57平方米,容积率1.0-1.2。

项目所处板块是连接古城与新城的重要通道,邻近阊门、石路商圈,既是交通枢纽,也承载着老苏州的生活记忆与市井烟火。
近华贸姑苏里、石路街区、西园寺、留园等区域地标;周边有轨交1号线桐泾北路站、金阊外国语实验学校、苏州市八一小学、金阊医院等成熟生活配套。


金阊外国语实验学校
地块土地平整,周边环绕的基本都是老旧小区,北侧紧邻汉庭酒店,酒店正常营业中。


地块及周边原貌(2024年7月拍摄)
地块东北侧一路之隔坐落着月星国际家居(桐泾北路店),人车流量都比较大。

地块一路之隔月星国际家居
随着该地块规划的出炉,目前金门路板块已聚集有两大别墅新盘,另一个为建发的宋风别墅。
建发项目容积率1.15,拟建8栋4-6层叠墅,为纯别墅小区。


建发别墅产品效果图
虽都是别墅,二者在产品类型上还是有一定差异,你更喜欢哪款呢?考虑古城别墅的购房者,可以关注起来了!
【购房资讯轻松享,快来关注乐居网】文章来源:乐居买房
财经号声明: 本文由入驻中金在线财经号平台的作者撰写,观点仅代表作者本人,不代表中金在线立场。仅供读者参考,并不构成投资建议。投资者据此操作,风险自担。同时提醒网友提高风险意识,请勿私下汇款给自媒体作者,避免造成金钱损失,风险自负。如有文章和图片作品版权及其他问题,请联系本站。
