建发璟园!古城首个宋风叠墅来了!户型曝光
乐居买房苏州 建发带着它的“王炸”产品——纯宋风叠墅建发璟园,杀入姑苏古城!
项目城市展厅已正式公开,户型同步曝光:1.15超低容积率,全四代墅配置,4叠+6叠纯叠加,户型建面约190-240㎡!(以开发商公示为准)



展厅实景
建发苏州首个宋风雅韵新作
建发房产作为“新中式建筑专家”,近年来凭借“王府中式”“禅境中式”等产品线屡创市场标杆。此次落子姑苏金门板块,是建发首次将“宋风雅韵”风格引入苏州。

宋式美学讲究“清雅含蓄”,与姑苏古城“粉墙黛瓦”的气质高度契合。从已曝光的效果图可见,项目立面采用素雅色调,通过飞檐、格栅等细节再现宋代建筑精髓。

公示效果图



效果图(图源网络)
值得一提的是,该项目地块(苏地2024-WG-Z47号)是建发经过51轮激烈竞价,以5.31亿元总价、23.77%溢价率竞得,成交楼面价达26054元/㎡,足见房企对地块价值的认可。更值得关注的是,建发后续又拿下相邻地块(苏地2025-WG-Z11号,容积率1.2),将统一开发为建发璟园姊妹项目,形成成片低密住区。

纯粹叠墅填补市场空白
根据规划,建发璟园将打造8栋4-6层纯叠墅,分为4叠与6叠两种产品形态,户型面积预计约190-240㎡,是姑苏古城近三年唯一容积率≤1.15的纯墅类项目。这种“全叠墅”配置在土地资源稀缺的古城区极为少见,项目稀缺性可见一斑。

公示效果图
项目采用“四代墅”设计理念,通过垂直空间叠加实现“有天有地”的墅居体验。
从曝光的户型图具体来看(以下户型均为设计过程稿,以开发商最终发布为准):
下叠带地下室,中叠设置独立空中花园,上叠配备U型超级露台,各户型均通过独梯独户设计保障私密性。这种“全生命周期”户型设计,既能满足多代同堂的居住需求,又为单一代际家庭提供成长弹性空间。

下叠户型

上叠户型

中叠户型
建发璟园在户型设计上突破传统,带来三大创新亮点:
一是“奢侈级”空间赠送。所有户型客厅均采用挑空设计(后期可浇筑),每个户型都赠送大露台,部分下叠赠送地下室(带采光井),中叠赠送空中花园,上叠则享约40㎡U型露台。以约240㎡下叠为例,实际可使用面积预计超300㎡,堪称“古城首个高赠送超级别墅”。
二是“宋式生活场景”营造。项目对标杭州云启钱湾高端产品系,通过宋代下沉式会所、庭院连廊等设计,再现宋代雅致生活意境。


三是“隐形奢华”细节。首层3.4米、二层3.2米的层高远超市场标准;南向大面宽,实现多开间朝南+多套房设计搭配,在古典形制中植入当代舒适标准。

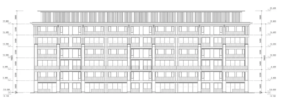
立面图
古城芯稀缺资源聚合
项目位于金门路北、馨泓路东,坐拥古城核心资源:紧邻苏州市政府;商业休闲配套聚集有华贸中心、西城永捷、石路国际商城、市体育中心等城市核心配套;交通方面,近西环高架、轨交1/2号线站点;教育资源涵盖金阊外国语实验学校等学校;医疗资源则有苏大附二院、金阊医院等医院护航。
特别值得一提的是文化资源——项目与寒山寺、西园寺、留园等相距都不远,项目“出则繁华、入则静谧”区位特质十分明显。

当前姑苏区改善需求持续旺盛,但市场供给仍以高层、小高层为主。建发璟园的出现,不仅填补了板块纯叠墅产品的空白,更重新定义了古城高端居住标准。
从市场对标看,相邻的保利姑苏瑧悦备案价已达4.6万/㎡,而建发璟园作为容积率更低、产品更纯粹的叠墅项目,价值天花板有望进一步突破。
目前,项目城市展厅已开放,首批房源有望近期入市。
文章来源:乐居买房
财经号声明: 本文由入驻中金在线财经号平台的作者撰写,观点仅代表作者本人,不代表中金在线立场。仅供读者参考,并不构成投资建议。投资者据此操作,风险自担。同时提醒网友提高风险意识,请勿私下汇款给自媒体作者,避免造成金钱损失,风险自负。如有文章和图片作品版权及其他问题,请联系本站。
