停工近10年!宝安西乡神盘“复活记”,能卖多少钱?
在深圳,不缺乏“神盘”!
2006年,当深圳地铁1号线还在延伸,宝安西乡一块占地约2万㎡的地皮开始了它的“建房梦”。
谁也没想到,这个梦一做就是19年。
2015年底开始,项目在基础工程完工后突然停工,这一停就是近10年。
并且,它在此期间还经过多次的规划调整,并传出恒裕将介入开发。
当大家以为“这项目怕是要‘烂’在宝安”的时候,2025年的夏天,它要入市了!
对于项目的停工纠纷,众说纷纭。值得关注的是,如今这个地铁上盖、纯住宅优质物业,将由华联发展与恒裕集团,两家联手打造。

峦山府项目现场。乐居摄202508对了,它有了新的推广名字叫华联峦山府,并且最快将在下个月入市。这速度,也是有点“秃然”!
横跨19年
一部深圳楼市的“穿越剧”
华联峦山府的开发历程,堪称深圳房地产界的一部“穿越剧”。
最早可追溯到2006年,这个项目启动了前期规划。
8年后,2014年8月,它终于正式动工。工地的塔吊刚刚立起,如火如荼开工一年后,2015年底合作方之间的合同纠纷,让整个项目戛然而止。
在2016年完成基础工程后,项目彻底搁置,成为西乡核心区一处醒目的“城市疤痕”。


停工五年后的御品峦山。乐居摄于202010
而在2015年至2020年8月这段期间,规划经历了多次“整容”:
容积率由“3.6”变更为“3.65”。
绿化覆盖率由“35%”变更为“25%”
机动车泊位数由“910辆(自用760辆,公用150辆)”变更为“800辆
建筑高度或层数由“多层、高层”变更为“≤150米……”
背后的开发企业,也经历几次重大调整。
项目原建设单位深圳市泰新利物业管理有限公司,后更名为深圳市景恒泰房地产开发有限公司(简称景恒泰),是深圳市物业发展(集团)全资子公司。
2023年12月底,华联控股通过深圳联合产权交易所,竞得标的物景恒泰100%股权,主要资产为货币资金和御品峦山项目,成交总价8.35亿元。
本次交易完成后,景恒泰公司还拥有御品峦山项目2325㎡商业的权益。
在交易公告中,华联控股表示,其实控人恒裕集团作为担保方,参与了“御品峦山”项目的合作开发业务,取得了该项目后续开发的控制权。

2024年03月23日,华联控股发布交易公告,恒裕集团0元转让项目70%权益(除2325㎡商业+停车场)于景恒泰,后者须归还前者垫付的工程款保证金1亿元。
本次关联交易后,双方根据项目开发进度,按景恒泰公司70%、恒裕集团30%承担御品峦山项目工程的开发、建设资金和费用,及享有相应的权益。
而值得一提的是,华联控股实控人龚泽民与恒裕集团实控人龚俊龙为父子关系。
同年10月,项目动作神速,全面复工。
共504户!最新规划出炉:小高层、地铁物业
峦山府的房屋规划,也是经历多重波折。
根据深圳规自局公告,峦山府曾于2014年8月核发《建设工程规划许可证》,2020年8月重新办理建设用地规划许可,2024年12月申请依据新规标准重新设计,备案名“御品峦山花园”变更为“御品峦山雅苑”。
今年1月份,华联峦山府终于拿到了《建设工程规划许可证》,规划蓝图正式亮相,7月微调了一下。
能看出来在琢磨产品上,也是投入了不少时间。
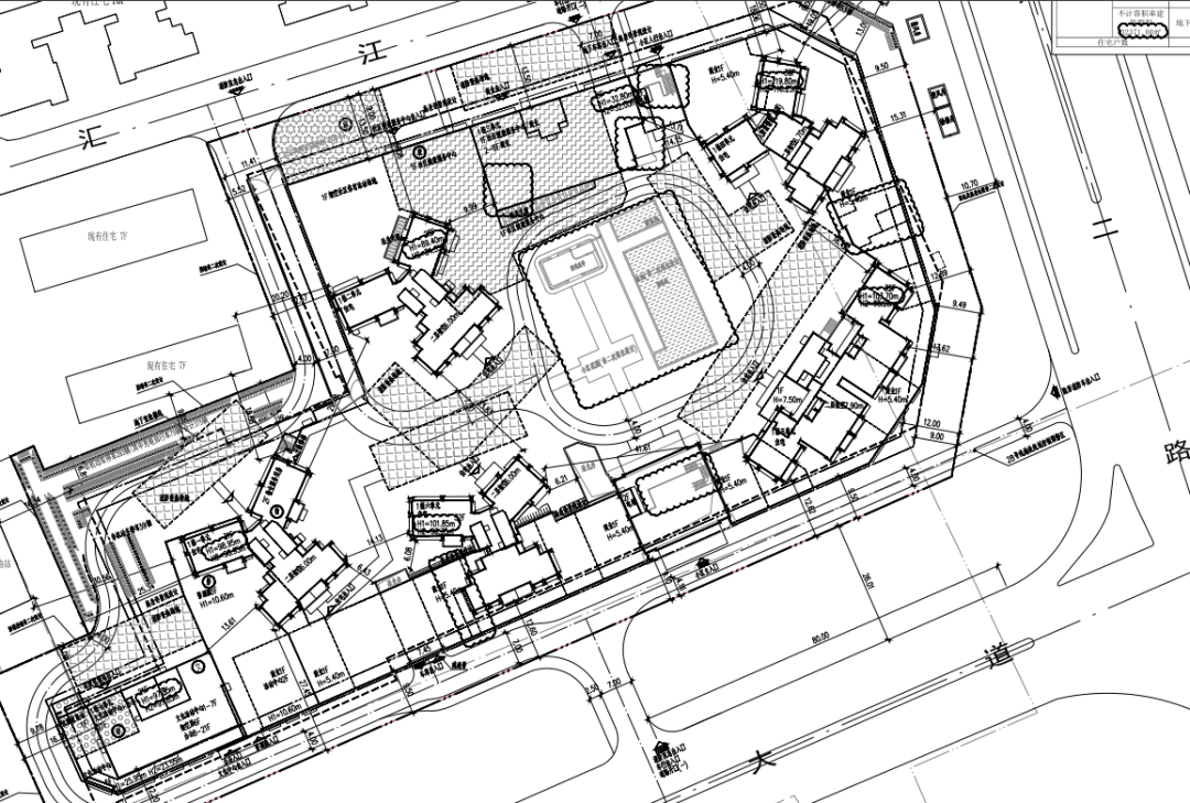
项目(宗地号:A117-0647)位于深圳市宝安区西乡街道,航城大道与前进二路交汇处。
根据今年8月6日的最新规划图,项目建设用地面积21923.84㎡,总建筑面积124333㎡,容积率4.19,机动车停车位800个,车位配比超过1:1。

规划建设7栋楼,其中1栋三单位为6层商业,1栋七单元为21层的办公产品,其余单元皆为住宅,分别为28-38层的高层住宅,共504户,采用2梯4户或3梯4户设计。

目前已出地面多层,项目东侧紧靠地铁12号线西乡桃源站,西侧为在建地铁20号线二期航城站(预计2029年建成),是名副其实的双地铁上盖物业。


华联峦山府。乐居摄202508
目前该片区没有新盘在售,在华联峦山府入市前,这里依然是二手房市场为主。
与项目紧邻的两个重量级选手:桃源居和领航城,是西乡传奇的成交热门小区。
据乐有家门店成交数据,7月桃源居共成交20套,成交均价约3.2万/㎡,主力户型为建面约73-78㎡2房、86-104㎡3房;在深圳贝壳门店成交记录中,桃源居以23套成交量位居宝安第一、全市第三。楼龄较新的领航城领誉(南区),最新成交均价在5.64万/㎡左右。

桃源居小区。乐居摄202508
周边有多所学校,如宝安航城学校(中学)、桃源居中澳实验学校、西乡实验学校,以及航城街道中心幼儿园等。
1公里范围内有航城里购物中心以及桃源居的临街商业;约3公里内还有缤纷时代购物中心、西乡彩虹城等商业体,生活配套较为完善。
但这里也是宝安有名的工业区,汇聚不少诸如西乡新安第二工业区,江潮工业区,以及一些产业园和汽车养护4s店等。

峦山府周边环境。乐居摄于202508
搁置10年之久,峦山府“复活”的今天,大环境早已不同。
这也许,可以解释华联要把恒裕带上的原因。
这个被称为深圳“豪宅之父”的恒裕集团,其开发的恒裕滨城,依然顶着“深圳最高挂牌价”的头衔,让人不免联想到,“高价与高品质”画上等号。
据悉,项目将推出建面约96-119㎡的平层和133-170㎡的复式产品,精准狙击眼下刚需和改善需求。不知道,最后能卖多少钱?能卖几成?
文章来源:乐居买房
财经号声明: 本文由入驻中金在线财经号平台的作者撰写,观点仅代表作者本人,不代表中金在线立场。仅供读者参考,并不构成投资建议。投资者据此操作,风险自担。同时提醒网友提高风险意识,请勿私下汇款给自媒体作者,避免造成金钱损失,风险自负。如有文章和图片作品版权及其他问题,请联系本站。
