确定了!南海图书馆明年要搬!千灯湖新地标最快春节前投用?
哇撒!
集图书馆、科学馆、文化馆等于一体的超级地标——
南海文化中心快要来了!
而且最快明年春节前就能投用?

南海图书馆明年将搬!新馆最快春节前有消息
事情是这样的。
近日,乐居在南海图书馆的官方公众号上发现这样一则消息:阅读马拉松|14:00开始报名!现馆址最后一场比赛...

没错,“现馆址最后一场比赛”成功吸引了我的注意,到底是这个比赛的最后一场呢,还是南海图书馆即将搬迁了呢?
怀着强烈的好奇心,我也潜入到了活动群。
果不其然,工作人员透露,第九届将不在旧馆开跑,而是要改到千灯湖新馆了。

至于新馆的投用时间,工作人员则指出,预计2026年春节前应该会有好消息。据此推测,南海文化中心最快或有望在2026年春节前投用!

无独有偶,乐居翻查此前项目定标的南海文化中心项目智能化工程发现,整个项目的计划工期400天,计划开工日期为2024年12月30日,计划竣工日期正是2026年2月3日,刚好就在2026年的春节2月17日前!

现状已封顶 现对外公开招商
日前,乐居特地走访了一下现场,发现整个文化中心已经全面封顶,呈现中间低,两侧高的形状,仿佛一只小鸟张开双翼。

而从天空俯瞰,清晰可见4栋错落有致的楼体,楼前大门位置则呈现扇形设计,门前的道路和四周的广场也正在火热施工中。


由远及近,整个南海文化中心在周边一众的城市建筑群中脱颖而出,蓝天映衬下独特轮廓与现代设计语言,使其成为格外醒目的城市地标。

此外,有相关建筑设计媒体曝光,科技馆中庭直径达16米、重约220吨的巨型悬吊钢结构球体,通过精工钢构团队创新的斜向同步牵引提升技术,已成功实现高精度就位。

©PEI Architects
将新建黑匣子剧场、儿童图书馆等
事实上,随着南海文化中心建设进展的加快,南海文化中心内部的各项软装也已陆续提上日程。
而乐居在各项采购资料里面,也成功扒到了新图书馆和文化馆的详细规划图!

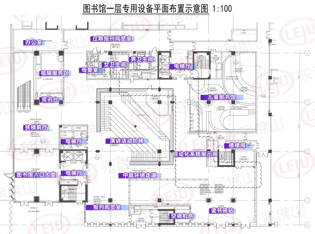
其中,图书馆总共有7层(包括负1层和1-6层)的建筑空间。
一层包括有儿童图书馆、读书驿站、视障服务区和报刊阅览室等。

二层则规划有图书馆服务台、青少年阅览区、咖啡厅、阅览讨论室和市民学习中心。

三层包括有青少年藏书区、多媒体阅览区、青少年阅览区、大会议室、馆长室和副馆长室。

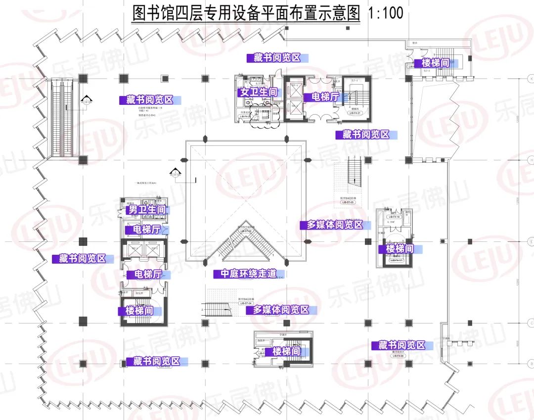
至于四到六层的格局,则大体相同,主要包括有多媒体阅览区和藏书阅览区,图书馆中庭则设置有旋转楼梯。



四至六层的平面图(滑动查看)此外地下一层则主要以智能图书分拣系统、图书立库系统为主。

而文化馆目前仅曝光有三层,分别为二层、负一层和负二层。其中,二层包括有舞蹈教室、粤剧排练厅、录音室、资料室和新时代文明实践中心。

地下负一层包括有综合表演厅、黑匣子剧场、运动室、多功能排练厅、休闲体育大堂、文化综合大堂,而地下负二层则包括有舞台、指挥休息室、化妆间等。


地下一二层的平面图(滑动查看)
地处千灯湖核心 现已全面对外招商
当然,南海文化中心的功能还远不止此。
据了解,南海文化中心总用地面积约为56017.6㎡,总建筑面积约17万平方米,集成图书馆、自然科学探索馆、文化馆等功能。
项目就位于南海区中轴线核心地段,北至海五路,南至海四路,西至南海大道北,东至灯湖西路,地处千灯湖核心板块。

项目将以“多元共享、功能互补”为核心理念,依托24小时开放市民广场,与千灯湖景区无缝衔接,市民可无障碍往返于文化中心与千灯湖景区。

目前,项目已正式对外启动招商,招商范围聚焦两大独立场馆与三类商业配套空间。
其中,裙楼四楼拟引入文化及教育项目,商业负一层拟设约3800㎡无火餐饮空间,计划引入地方特色或创意主题餐饮品牌;负二层则规划标准室内篮球馆,拟引进专业体育培训机构或体育用品品牌专卖店。

就问这样的南海文化中心,你期待吗?
文章来源:乐居买房
财经号声明: 本文由入驻中金在线财经号平台的作者撰写,观点仅代表作者本人,不代表中金在线立场。仅供读者参考,并不构成投资建议。投资者据此操作,风险自担。同时提醒网友提高风险意识,请勿私下汇款给自媒体作者,避免造成金钱损失,风险自负。如有文章和图片作品版权及其他问题,请联系本站。
