规划出炉!联排+叠加!吴中太湖新城首个纯别墅盘亮相!
乐居买房 启幕2026,苏州别墅市场热度不减!近期,吴中太湖新城板块首个纯别墅项目来了!苏州太璞置Z22号地块规划出炉!带来联排+叠加纯粹墅居!


俯瞰效果图
根据规划,项目容积率1.02,拟建21幢3F联排+4幢6F叠加别墅。

总平面图
人行出入口分布在沿河道的东、南两侧,车行主出入口位于子文街上。
项目位于苏州市吴中区太湖新城街道箭浮山路东侧子文街南侧,用地面积35568.16㎡,地上计容面积约36279.52㎡,总建筑面积约68547.43㎡,打造25幢3F/6F住宅,2幢1F/2F配套。
项目建设单位苏州太璞置地有限公司,为吴中经开国控集团全资控股企业。据悉,该项目将由绿城管理代建。设计规划上引入“水陆并行、河街相邻”的规划格局,建筑风格上将呈现宋韵墅居,强调宋代建筑的简洁、优雅之美学。

(图片/消息来源:绿城利普,最终设计规划以开发商公示为准)
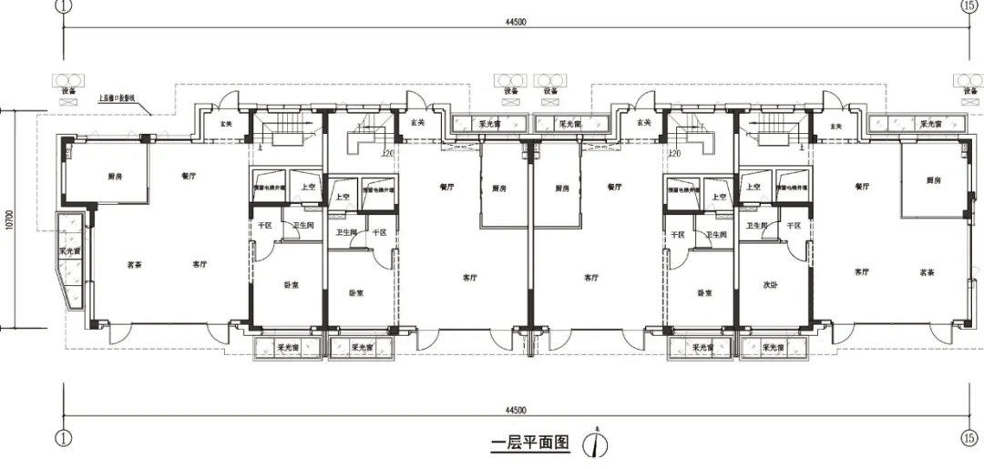
此次规划,联排和叠加户型均有公示。
联排层高3.6、3.15、3.15米,一层空间十分阔绰。

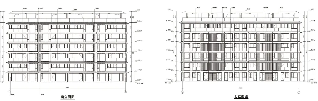
联排立面图
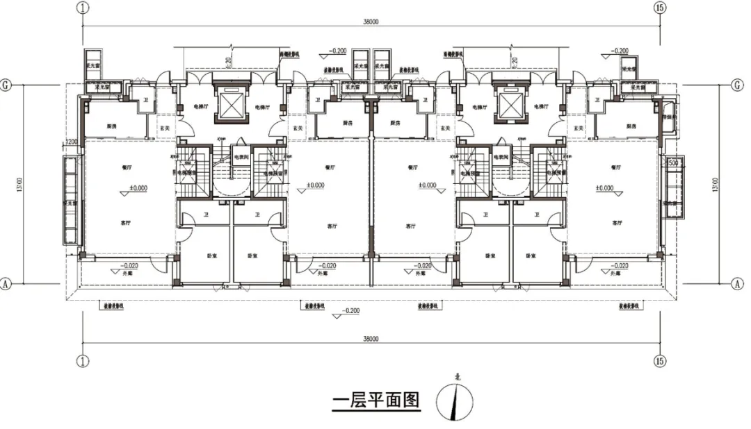
联排户型南向面宽约11.13米,一层,南北双庭院入户,厨餐客茶厅俱备,外加1个南向套房。

联排一层
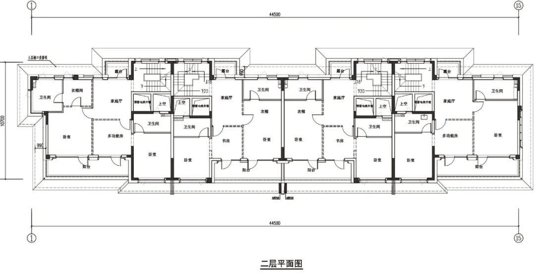
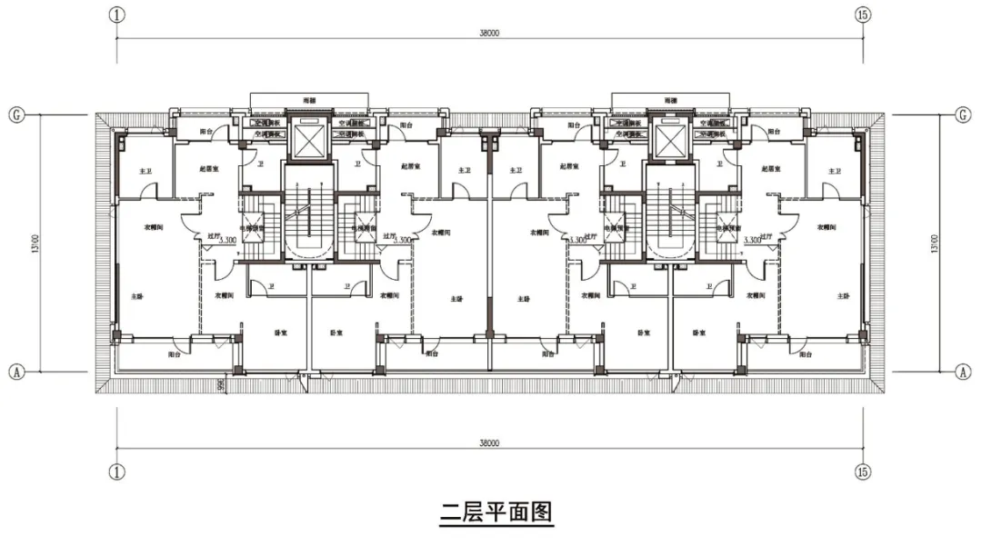
二层,三开间朝南,2大套房,其中一个套房还带衣帽间,南阳台+北露台,采光充足。

联排二层
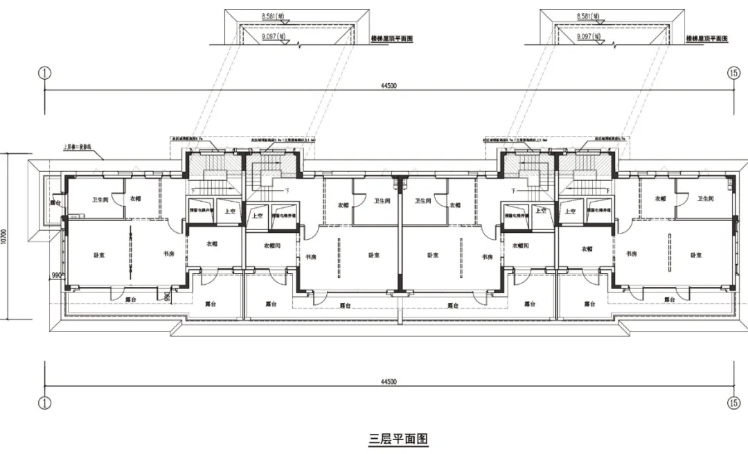
三层,为男女主人尊享空间,豪华大套房,匹配男女双衣帽间,南向超大开阔露台。

联排三层



联排户型平面图叠加层高,首层3.3米、二层3.15米。

叠加立面图叠加户型南向面宽约9.5米。一层为家庭公共活动空间,独立玄关入户,LDKB一体化设计,南向一个大套房,此外该层还设有独立卫生间,使用更方便。

叠加一层二层两大套房均带独立衣帽间、独立卫生间,南北双阳台,私密感舒适度均在线。

叠加二层


叠加户型平面图
苏地2024-WG-Z22号地块于2024年10月18日由苏州吴中滨湖置业有限公司以65303万元总价拿下,楼面价约18000元/㎡。

项目北侧即新盘融悦沁庭,一路之隔华中师范大学苏州湾实验小学,不远处即华中师大苏州实验中学,教育资源齐备。步行可至轨交7号线木里站,南向不远处即太湖一线湖景。生活配套上,近吴中永旺、歌林公园、市立医院太湖总院等城市配套,且有湾西睦邻坊规划,日常生活将十分便利。

项目位置图
值得一提的是,除22号地块之外,近期吴中太湖新城华中师范大学苏州实验中学旁,苏州太璞置地再竞得一宗低密地块(苏地2025-WG-Z32号地块。容积率1.05),两大项目相距不远,这也意味着吴中太新别墅大幕将正式拉开。

苏州太璞置地两项目位置
苏地2024-WG-Z22号地块项目目前已开始全面推进,多项工程招投标已启动,相信不久就会与大家见面,对该板块别墅感兴趣的客户可以关注起来!

招投标截图
文章来源:乐居买房
财经号声明: 本文由入驻中金在线财经号平台的作者撰写,观点仅代表作者本人,不代表中金在线立场。仅供读者参考,并不构成投资建议。投资者据此操作,风险自担。同时提醒网友提高风险意识,请勿私下汇款给自媒体作者,避免造成金钱损失,风险自负。如有文章和图片作品版权及其他问题,请联系本站。
