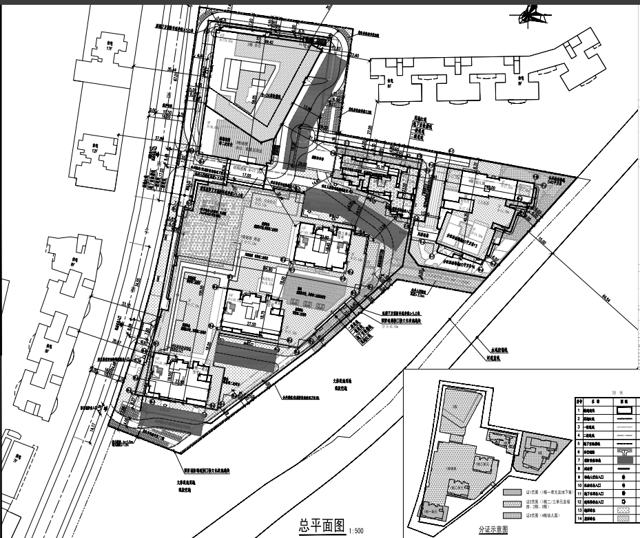
南山西丽湾上云启府最新规划发布!共规划278户

虽然规划有商业配套,但目前周边商业氛围相对薄弱,短期内可能依赖周边小区底商,大型商业设施需等待项目整体开发完成才能完善。
文章来源:乐居买房
财经号声明: 本文由入驻中金在线财经号平台的作者撰写,观点仅代表作者本人,不代表中金在线立场。仅供读者参考,并不构成投资建议。投资者据此操作,风险自担。同时提醒网友提高风险意识,请勿私下汇款给自媒体作者,避免造成金钱损失,风险自负。如有文章和图片作品版权及其他问题,请联系本站。

虽然规划有商业配套,但目前周边商业氛围相对薄弱,短期内可能依赖周边小区底商,大型商业设施需等待项目整体开发完成才能完善。
文章来源:乐居买房
财经号声明: 本文由入驻中金在线财经号平台的作者撰写,观点仅代表作者本人,不代表中金在线立场。仅供读者参考,并不构成投资建议。投资者据此操作,风险自担。同时提醒网友提高风险意识,请勿私下汇款给自媒体作者,避免造成金钱损失,风险自负。如有文章和图片作品版权及其他问题,请联系本站。
由于您的浏览器非微信客户端浏览器,无法继续支付,如需支付,请于微信中打开链接付款。(点击复制--打开微信--选择”自己“或”文件传输助手“--粘贴链接--打开后付款)
或关注微信公众号<中金在线>底部菜单”名博看市“,搜索您要的作者名称或文章名称。给您带来的不便尽请谅解!感谢您的支持!